復式三層帶車庫簡歐小別墅建造實拍,這么火是有原因的!
不管是什么東西,能被大眾喜歡和熱捧,肯定都有它的特點。農村建房的外觀造型也一樣,如果誰家建了一棟漂亮大氣的房子,那周邊后續建房的人都會拿這棟房子來做參考和對比,畢竟建房子是一輩子的事誰都想建的更好一點。小編接下來介紹的是一款復式三層帶車庫簡歐小別墅的建造實拍,這款圖紙是很受歡迎的一款,因此建房案例都不少,看完你就會明顯為什么這么火了!
別墅效果圖

此款別墅為磚混結構的復式三層,開間11.7米,進深11.1米,占地面積125.93平方米,建筑面積303.96平方米,主體造價為24-28萬,此款圖紙編號:DC0229。
首層戶型圖:

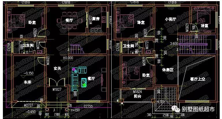
圖紙預覽:


一 層:客廳(中空)、臥室、廚房、餐廳、衛生間、車庫
二 層:小客廳、臥室(附陽臺)、2臥室、衛生間
三 層:小客廳、臥室(附陽臺)、2臥室、衛生間、露臺
案例實拍

.jpg)
本文由別墅圖紙超市編輯發布,如需了解更多,可登錄網站主頁http://www.wxtmjd.cn/,或者撥打我們的免費電話400-8080-889在線咨詢。
>>>>推薦閱讀:15套三層復式別墅,4套帶旋轉樓梯,6套造價30萬左右!
>>>>推薦閱讀:8款漂亮實用三層別墅,大氣亮眼不懼任何別墅對比,農村人最愛!
>>>>推薦閱讀:8款二層帶庭院農村別墅,有院子車庫大露臺才是完美愜意人生!











