8款二層帶庭院農村別墅,有院子車庫大露臺才是完美愜意人生!
農家別墅不管怎么時代變遷,對于小院和曬臺都有著難以割舍的情節,這應該是農村的人情味兒所決定的,小院適合左鄰右舍的串門和栽種瓜果,房子四周圍墻圍合而成院子,保護隱私,也擴大居住面積,而曬臺更是農家生產生活所必須的。今天介紹的這8套帶院子二層別墅,你喜歡嗎。
二層帶小院別墅
.jpg)
.jpg)
這是一套二層帶院子小別墅,坡屋頂使用傳統的紅色瓦片覆蓋,墻體為淺黃色面磚,一層外墻裙邊使用紋理清晰的文化石,建筑整體清新淡雅。
歐式二層帶小院別墅
.jpg)
.jpg)
.jpg)
整個建筑的外裝飾色調采用了經典的三段式,大部分外墻采用了米黃色,其余的部分采用了文化石做點綴,而屋頂使用了深灰色帶花紋萬片,整個建筑層次分明,空間豐富。一個大大的院子能給我們帶來很多生活樂趣。
歐式二層帶煙囪別墅
.jpg)
.jpg)
.jpg)
.jpg)
外墻白色、深棕配色,經典耐看且耐臟,自有一番端莊雅致的韻味。
房子前面是寬綽的內院,院內單獨建著一處停車庫,旁邊種著些花兒草兒略作裝點。能在鄉間擁有這樣一處宅院,是很多人的夢想。
二層帶獨立廚房小院別墅
.jpg)
.jpg)
.jpg)
此戶型占地方正,房子四周圍墻圍合而成院子,保護隱私,也擴大居住面積,別墅外墻采用文化石和米色磁磚搭配,時尚靚麗,富有歐式風情,二樓陽臺方便晾曬和觀景。
農村二層帶大院子別墅
.jpg)
.jpg)
.jpg)
整個建筑造型成穩大氣,經典的紅棕色坡頂同淺黃色和棕色的墻面相互搭配,整體層次分明,在窗戶上的細節的處理,使得別墅整體更加的精致美觀。別墅各個空間相互獨立,充分保護個人的隱私,體現了戶主高品質的生活。
院子開闊,光照充足,主人可于院內植樹栽花,飼鳥養魚,是十分理想的露天起居室。
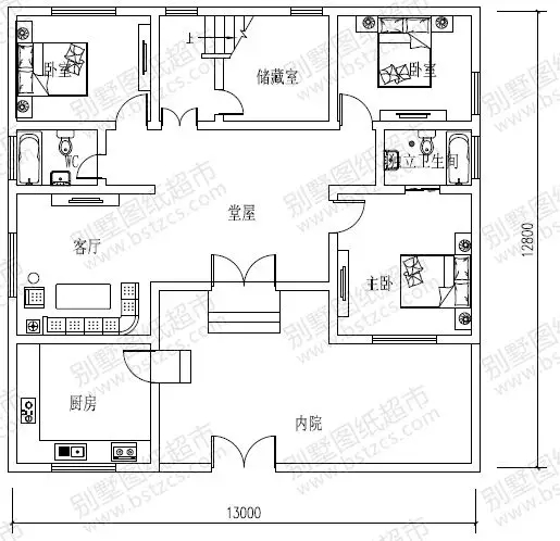
農村實用二層帶內院
.jpg)
.jpg)
本款圖紙編號: DC0213,磚混結構,開間13米,進深12.8米,占地面積172.65平方米,建筑面積250.95平方米,主體造價18-22萬。
首層戶型:
.jpg)
圖紙預覽:
.jpg)
一 層:內院、堂屋、客廳、臥室(附衛生間)、2臥室、廚房、儲藏室、衛生間
二 層:客廳、主臥(附衛生間,露臺)、3臥室、衛生間
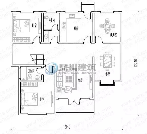
二層新農村別墅設計
.jpg)
.jpg)
本款圖紙編號: DC0031,磚混結構,開間13.14米,進深12.24米,占地面積134.73平方米,建筑面積276.34平方米,主體造價18-22萬。
首層戶型:
.jpg)
圖紙預覽:
.jpg)
一 層:客廳、臥室(附衛生間)、臥室、棋牌室、廚房、餐廳、衛生間
二 層:起居室(附露臺)、臥室(附衛生間)、臥室(附書房)、臥室、衛生間
新農村二層自建房
.jpg)
.jpg)
本款圖紙編號: DC0053,磚混結構,開間11.6米,進深13.5米,占地面積119.14平方米,建筑面積215.74平方米,主體造價18-24萬。
首層戶型:
.jpg)
圖紙預覽:
.jpg)
一 層:客廳、2臥室、廚房、餐廳、農具房、衛生間、庭院
二 層:起居室(附陽臺)、2臥室、衛生間、露臺
三 層:露臺
現在大多數的人住在城市,相信很多人雖然覺得城市繁華,但已經很疲憊了,還是想回到農村,自己在家鄉建上一棟帶小院的樓房,在小院里種種花,邀幾個朋友喝喝茶聊聊天,過著悠閑自得生活的吧。
.jpg)
本文由別墅圖紙超市編輯發布,如需了解更多,可登錄網站主頁http://www.wxtmjd.cn/,或者撥打我們的免費電話400-8080-889在線咨詢。
>>>>推薦閱讀:6款簡潔易建造的自建別墅,農村人都愿意建的戶型!
>>>>推薦閱讀:5款經典案例,第1套100%還原效果圖,第3套造價才25萬!
>>>>推薦閱讀:40款私人定制案例,第2款四合院超貴氣,第23款人人想建!











