15套三層復式別墅,4套帶旋轉樓梯,6套造價30萬左右!
現在農村里家家戶戶基本上都在建新房,但是建造的水平真的是參差不齊,有的丑出了新高度,有的卻漂亮的一塌糊涂,所以一款好的設計圖紙非常重要。在別墅的設計與造型中,要論大氣感,選擇復式的設計毫無疑問是最佳的,因為復式的設計會讓別墅的整體空間顯得十分大氣。因為客廳樓上與樓下架空想通,除了讓房子更顯大氣之外,還會讓通風采光更加有優勢。這15款復式客廳別墅,經濟實用,美觀大氣,下面我們就一起來看看吧。
編號DC0205:復式三層帶車庫

主體造價: 25-30萬
開間: 13.4米 進深: 10.2米
占地面積: 119平方米
建筑面積: 297.6平方米
首層戶型:

一 層:入口玄關、客廳、廚房、餐廳、衛生間、車庫
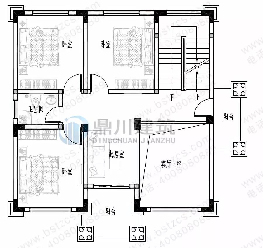
二 層:起居室、臥室(附陽臺)、臥室、書房、衛生間
三 層:起居室、主臥(附陽臺)、臥室(附陽臺)、書房、衛生間、露臺
編號DC0353:復式三層帶露臺

主體造價: 40-45萬
開間: 14米 進深: 13.8米
占地面積: 196.66平方米
建筑面積: 434.81平方米
首層戶型:

一 層:走廊、堂屋、客廳(中空)、會客室(附內陽臺)、臥室(附衛生間)、廚房、餐廳、衛生間
二 層:小客廳(附陽臺)、臥室(附衛生間,露臺)、臥室(附書房)、臥室、衛生間
三 層:活動室、臥室(附衛生間)、臥室(附書房)、衛生間、陽臺、露臺
編號DC0361:簡歐復式三層帶露臺

主體造價: 30-35萬
開間: 11米 進深: 12米
占地面積: 138.34平方米
建筑面積: 351.69平方米
首層戶型:

一 層:門廳、客廳(中空)、臥室(附衛生間)、臥室、廚房、餐廳、衛生間
二 層:客廳(附露臺)、臥室(附衛生間,陽臺)、臥室(附書房)、臥室、衛生間
三 層:健身房、臥室(附衛生間)、臥室、衛生間、露臺
編號DC0370:歐式三層小別墅

主體造價: 30-35萬
結構形式: 框架結構
開間: 11.42米 進深: 11.22米
占地面積: 115.18平方米
建筑面積: 313.68平方米
首層戶型:

二層戶型:

三層戶型:

一 層:門廳、客廳(中空)、臥室、廚房、餐廳、衛生間
二 層:起居室(附陽臺)、3臥室、衛生間、陽臺
三 層:娛樂室、3臥室、衛生間、露臺
編號DC0380:歐式三層旋轉樓梯別墅

主體造價: 40-50萬
結構形式: 框架結構
開間: 12.2米 進深: 12.8米
占地面積: 150.95平方米
建筑面積: 364.41平方米



一 層:堂屋、客廳(中空)、臥室(附衛生間)、臥室(附衣帽間)、廚房、餐廳、衛生間
二 層:起居廳(附陽臺)、臥室(附衣帽間,衛生間)、臥室、衛生間、露臺
三 層:起居廳、臥室(附露臺)、臥室、衛生間、露臺
編號DC0211:經典三層帶露臺

主體造價: 20-25萬
開間: 11.9米 進深: 10.3米
占地面積: 120.8平方米
建筑面積: 290.99平方米
首層戶型:

一 層:堂屋、客廳、老人房(附衛生間)、麻將室(附雜物間)、雜物間、廚房(兼餐廳)、衛生間
二 層:小客廳、主臥(附衛生間,陽臺)、臥室(附陽臺)、臥室、衛生間
三 層:臥室(附衛生間)、臥室(附陽臺)、臥室、衛生間、露臺
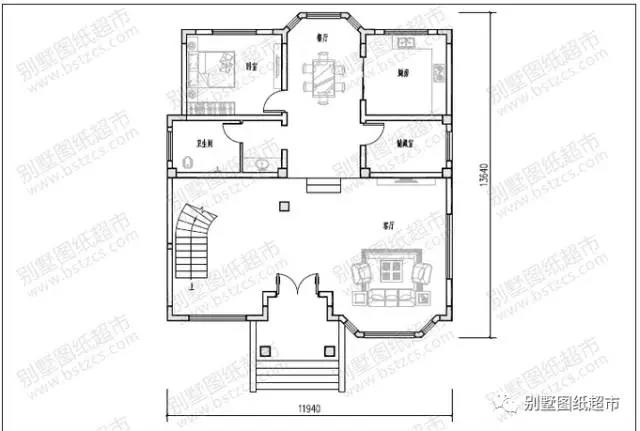
編號DC0217:漂亮的三層復式

主體造價: 35-40萬
開間: 11.94米 進深: 13.64米
占地面積: 150.77平方米
建筑面積: 398.05平方米
首層戶型:

一 層:客廳、休閑廳(中空)、臥室、廚房、餐廳、儲藏室、衛生間
二 層:主臥(附衣帽間,衛生間)、2臥室、衛生間
三 層:活動室、2臥室、書房、衛生間、露臺
編號DC0309:復式三層帶車庫

主體造價: 40-45萬
開間: 17.4米 進深: 11.7米
占地面積: 177.42平方米
建筑面積: 537.85平方米
首層戶型:

一 層:門廳、客廳(中空)、臥室(附衛生間)、廚房、餐廳、衛生間、車庫
二 層:起居室、臥室(附書房,衣帽間,衛生間,陽臺,露臺)、臥室(附陽臺)、衛生間
三 層:健身房、臥室(附衛生間,露臺)、臥室(附露臺)、2臥室(附陽臺)、衛生間
編號DC0314:復式三層農村別墅

主體造價: 38-42萬
開間: 16.5米 進深: 10.5米
占地面積: 165.88平方米
建筑面積: 479.52平方米
首層戶型:

一 層:門廳、客廳(中空)、2臥室、棋牌室、儲存間、廚房、餐廳、2衛生間
二 層:臥室(附書房,衣帽間,衛生間)、2臥室、衛生間、露臺
三 層:3臥室、家庭影院、2衛生間、露臺
編號DC0326:復式三層旋轉樓梯

主體造價: 50萬以上
開間: 16.5米 進深: 13.8米
占地面積: 229.61平方米
建筑面積: 486.15平方米
首層戶型:

一 層:堂屋、客廳(中空)、臥室(附書房,衛生間)、2臥室、廚房、餐廳、衛生間、涼亭
二 層:起居室(附露臺)、臥室(附衛生間)、2臥室、衛生間、露臺
三 層:健身廳、2臥室、衛生間、2露臺
編號DC0332:復式三層別墅

主體造價: 40-45萬
開間: 12米 進深: 12.8米
占地面積: 149.81平方米
建筑面積: 442.78平方米
首層戶型:

一 層:門廳、客廳(中空)、臥室(附衛生間)、臥室、廚房、餐廳、衛生間
二 層:起居室、休息區(附露臺)、臥室(附衛生間)、臥室(附露臺)、臥室、衛生間
三 層:健身廳、臥室(附書房,衛生間)、臥室(附露臺)、臥室、衛生間、露臺
編號DC0338:新農村復式三層帶露臺

主體造價: 38-42萬
開間: 12.9米 進深: 12米
占地面積: 160.83平方米
建筑面積: 477.39平方米
首層戶型:

一 層:門廳、客廳(中空)、臥室(附衛生間)、臥室、棋牌室、廚房、餐廳、衛生間
二 層:主臥(附書房,衣帽間,衛生間,陽臺,露臺)、臥室(附書房)、臥室、衛生間
三 層:健身房(附儲藏間)、臥室(附露臺)、臥室(附書房)、臥室、衛生間、露臺
編號DC0343:農村三層復式樓

主體造價: 40-45萬
開間: 12米 進深: 14.1米
占地面積: 146.27平方米
建筑面積: 444.19平方米
首層戶型:

一 層:門廳、客廳(中空)、臥室(附衛生間)、臥室、廚房、餐廳、觀景平臺、衛生間
二 層:起居室、臥室(附衛生間)、臥室(附書房,陽臺)、臥室(附露臺)、衛生間
三 層:健身廳、臥室(附衛生間)、臥室(附書房,露臺)、臥室、衛生間、露臺
編號DC0176:三層帶車庫復式樓

主體造價: 35-40萬
開間: 14.94米 進深: 15.14米
占地面積: 201平方米
建筑面積: 450平方米
首層圖紙:

一 層:門廳、客廳、臥室、廚房、餐廳、衛生間、車庫
二 層:臥室(附衛生間,露臺)、臥室(附衣帽間,衛生間)、臥室(附衛生間)
三 層:臥室(附衣帽間,衛生間,露臺)、活動室、衛生間、露臺
編號DC0327:三層帶車庫露臺別墅

主體造價: 38-42萬
結構形式: 磚混結構
開間: 13.2米 進深: 12.3米
占地面積: 153.63平方米
建筑面積: 451.28平方米
首層戶型:

二層戶型:

三層戶型:

一 層:門廳、客廳(中空)、臥室、廚房、餐廳、衛生間、車庫
二 層:起居室(附陽臺)、臥室(附書房,衛生間)、2臥室、衛生間
三 層:健身房、臥室(附書房,衛生間)、2臥室、衛生間、露臺
如今,選擇在農村建別墅的人越來越多,對戶型的要求也越來越多,不僅要求外觀上要漂亮,室內布局也要求大氣實用。這15套復式別墅戶型,室內布局合理,多娛樂性用間設計,各項設計的十分到位,給人的整個感覺就是相當精致!
.jpg)
本文由別墅圖紙超市編輯發布,如需了解更多,可登錄網站主頁http://www.wxtmjd.cn/,或者撥打我們的免費電話400-8080-889在線咨詢。
>>>>推薦閱讀:12款占地不足百平的農村別墅,經濟實用,最高造價不過26萬!
>>>>推薦閱讀:10款戶型嚴謹私密性強的農村別墅,布局必須給滿分!
>>>>推薦閱讀:7款開間12米的二層農村自建房,看了都為它的實用性點贊!











