5款帶露臺車庫的三層農村別墅,實實在在好戶型
今天要介紹的這5款帶露臺車庫的三層農村別墅,不管從房屋戶型設計的角度,還是從房屋造價的預算角度,以及房子的功能結構等等方面都算是精品了。總體而言,戶型方正,造價不高,其中有幾款還帶堂屋設計,這點比較適合農村人的生活特點,真是實實在在的好設計了,有自建房需要的可以好好看看。另外,小編還貼心的把每一款的開間及進深放在首位,方便你根據自家的地基進行選擇喲!
第一套:開間進深12.2米×13.6米

編號:DC0209
層數:三層
結構形式:框架結構
主體造價:28-32萬
占地面積:125平方米
建筑面積:330.6平方米
一層:客廳、臥室、廚房、餐廳、衛生間、車庫
二層:臥室(附衛生間,露臺)、2臥室、衛生間
三層:休閑廳(附露臺)、臥室(附陽臺)、衛生間
一層戶型設計圖:

第二套:開間進深10.5米×12米

編號:DC0202
層數:三層
結構形式:磚混結構
主體造價:20-25萬
占地面積:121.1平方米
建筑面積:310平方米
一層:客廳、臥室、廚房、餐廳、衛生間、車庫
二層:臥室(附衛生間,書房)、臥室(附衣帽間)、臥室、衛生間、露臺
三層:健身房、露臺
一層戶型設計圖:

第三套:開間進深11.45米×10.9米

編號:DC0037
層數:三層
結構形式:磚混結構
主體造價:20-25萬
占地面積:108.7平方米
建筑面積:305.6平方米
一層:客廳、臥室、廚房、餐廳、儲藏室、衛生間、車庫
二層:客廳、主臥(附走入式衣柜,衛生間,陽臺)、臥室、書房、衛生間
三層:活動室、臥室、書房、衛生間、露臺
一層戶型設計圖:

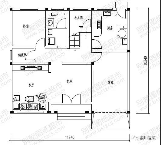
第四套:開間進深11.74米×10.34米

編號:DC0172
層數:三層
結構形式:磚混結構
主體造價:22-27萬
占地面積:117.85平方米
建筑面積:307.92平方米
一層:堂屋、客廳、臥室、廚房(兼餐廳)、儲藏間、農具間、衛生間、車庫
二層:客廳、臥室(附陽臺)、2臥室(附共用衛生間)、臥室、儲藏間、衛生間
三層:臥室(附陽臺)、2臥室、儲藏間、衛生間、露臺
一層戶型設計圖:

第五套:開間進深12.5米×12米

編號:DC0144
層數:三層
結構形式:磚混結構
主體造價:20-25萬
占地面積:135.54平方米
建筑面積:380.48平方米
一層:客廳、臥室、廚房、餐廳、衛生間、車庫
二層:客廳、2臥室(附陽臺)、臥室(附書房)、臥室、衛生間
三層:客廳(附陽臺)、2臥室、儲藏室、衛生間、露臺
一層戶型設計圖:

.jpg)
本文由別墅圖紙超市編輯發布,如需了解更多,可登錄網站主頁http://www.wxtmjd.cn/,或者撥打我們的免費電話400-8080-889在線咨詢。
>>>>推薦閱讀:新農村三層帶露臺房屋設計圖紙+農村自建房實拍效果圖
>>>>推薦閱讀:想建房的朋友們注意啦!11款三層歐式自建別墅設計圖供你選擇
>>>>推薦閱讀:12套新農村三層復式別墅,農村別墅的代表之作,建房首選!











