12套新農村三層復式別墅,農村別墅的代表之作,建房首選!
農村建房現在已經是一件非常平常的事情了,家里收入上去了,生活開始富足,家家戶戶也蓋起了新樓房,但是每家每戶的觀念和情況都不一樣,所以建造出來的房子,不管是從風格還是從布局來看都有所有差異,今天給大家推薦的是12款三層復式自建別墅圖,高大的門樓、巨大的復式客廳落地玻璃窗,占地方正經典大氣,可以說是農村別墅的代表之作,家里有地的趕緊收藏,以后蓋房照著蓋!
編號DC0205:復式三層帶車庫
.jpg)
主體造價: 25-30萬
開間: 13.4米
進深: 10.2米
占地面積: 119平方米
建筑面積: 297.6平方米
首層戶型:

一 層:入口玄關、客廳、廚房、餐廳、衛生間、車庫
二 層:起居室、臥室(附陽臺)、臥室、書房、衛生間
三 層:起居室、主臥(附陽臺)、臥室(附陽臺)、書房、衛生間、露臺
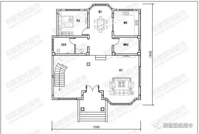
編號DC0211:經典三層帶露臺

主體造價: 20-25萬
開間: 11.9米
進深: 10.3米
占地面積: 120.8平方米
建筑面積: 290.99平方米
首層戶型:

一 層:堂屋、客廳、老人房(附衛生間)、麻將室(附雜物間)、雜物間、廚房(兼餐廳)、衛生間
二 層:小客廳、主臥(附衛生間,陽臺)、臥室(附陽臺)、臥室、衛生間
三 層:臥室(附衛生間)、臥室(附陽臺)、臥室、衛生間、露臺
編號DC0217:漂亮的三層復式

主體造價: 35-40萬
開間: 11.94米
進深: 13.64米
占地面積: 150.77平方米
建筑面積: 398.05平方米
首層戶型:

一 層:客廳、休閑廳(中空)、臥室、廚房、餐廳、儲藏室、衛生間
二 層:主臥(附衣帽間,衛生間)、2臥室、衛生間
三 層:活動室、2臥室、書房、衛生間、露臺
編號DC0309:復式三層帶車庫

主體造價: 40-45萬
開間: 17.4米
進深: 11.7米
占地面積: 177.42平方米
建筑面積: 537.85平方米
首層戶型:

一 層:門廳、客廳(中空)、臥室(附衛生間)、廚房、餐廳、衛生間、車庫
二 層:起居室、臥室(附書房,衣帽間,衛生間,陽臺,露臺)、臥室(附陽臺)、衛生間
三 層:健身房、臥室(附衛生間,露臺)、臥室(附露臺)、2臥室(附陽臺)、衛生間
編號DC0314:復式三層農村別墅

主體造價: 38-42萬
開間: 16.5米
進深: 10.5米
占地面積: 165.88平方米
建筑面積: 479.52平方米
首層戶型:

一 層:門廳、客廳(中空)、2臥室、棋牌室、儲存間、廚房、餐廳、2衛生間
二 層:臥室(附書房,衣帽間,衛生間)、2臥室、衛生間、露臺
三 層:3臥室、家庭影院、2衛生間、露臺
編號DC0326:復式三層旋轉樓梯

主體造價: 50萬以上
開間: 16.5米
進深: 13.8米
占地面積: 229.61平方米
建筑面積: 486.15平方米
首層戶型:

一 層:堂屋、客廳(中空)、臥室(附書房,衛生間)、2臥室、廚房、餐廳、衛生間、涼亭
二 層:起居室(附露臺)、臥室(附衛生間)、2臥室、衛生間、露臺
三 層:健身廳、2臥室、衛生間、2露臺
編號DC0332:復式三層別墅

主體造價: 40-45萬
開間: 12米
進深: 12.8米
占地面積: 149.81平方米
建筑面積: 442.78平方米
首層戶型:

一 層:門廳、客廳(中空)、臥室(附衛生間)、臥室、廚房、餐廳、衛生間
二 層:起居室、休息區(附露臺)、臥室(附衛生間)、臥室(附露臺)、臥室、衛生間
三 層:健身廳、臥室(附書房,衛生間)、臥室(附露臺)、臥室、衛生間、露臺
編號DC0338:新農村復式三層帶露臺

主體造價: 38-42萬
開間: 12.9米
進深: 12米
占地面積: 160.83平方米
建筑面積: 477.39平方米
首層戶型:

一 層:門廳、客廳(中空)、臥室(附衛生間)、臥室、棋牌室、廚房、餐廳、衛生間
二 層:主臥(附書房,衣帽間,衛生間,陽臺,露臺)、臥室(附書房)、臥室、衛生間
三 層:健身房(附儲藏間)、臥室(附露臺)、臥室(附書房)、臥室、衛生間、露臺
編號DC0343:農村三層復式樓

主體造價: 40-45萬
開間: 12米
進深: 14.1米
占地面積: 146.27平方米
建筑面積: 444.19平方米
首層戶型:

一 層:門廳、客廳(中空)、臥室(附衛生間)、臥室、廚房、餐廳、觀景平臺、衛生間
二 層:起居室、臥室(附衛生間)、臥室(附書房,陽臺)、臥室(附露臺)、衛生間
三 層:健身廳、臥室(附衛生間)、臥室(附書房,露臺)、臥室、衛生間、露臺
編號DC0353:復式三層帶露臺

主體造價: 40-45萬
開間: 14米
進深: 13.8米
占地面積: 196.66平方米
建筑面積: 434.81平方米
首層戶型:

一 層:走廊、堂屋、客廳(中空)、會客室(附內陽臺)、臥室(附衛生間)、廚房、餐廳、衛生間
二 層:小客廳(附陽臺)、臥室(附衛生間,露臺)、臥室(附書房)、臥室、衛生間
三 層:活動室、臥室(附衛生間)、臥室(附書房)、衛生間、陽臺、露臺
編號DC0361:簡歐復式三層帶露臺

主體造價: 30-35萬
開間: 11米
進深: 12米
占地面積: 138.34平方米
建筑面積: 351.69平方米
首層戶型:

一 層:門廳、客廳(中空)、臥室(附衛生間)、臥室、廚房、餐廳、衛生間
二 層:客廳(附露臺)、臥室(附衛生間,陽臺)、臥室(附書房)、臥室、衛生間
三 層:健身房、臥室(附衛生間)、臥室、衛生間、露臺
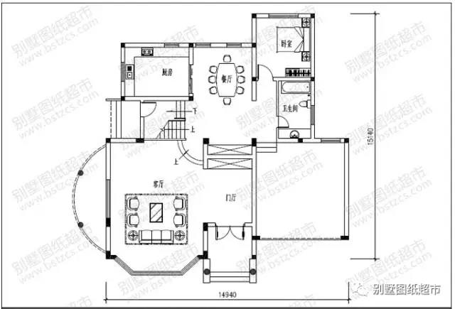
編號DC0176: 三層帶車庫復式樓

主體造價: 35-40萬
開間: 14.94米
進深: 15.14米
占地面積: 201平方米
建筑面積: 450平方米
首層圖紙:
.jpg)
一 層:門廳、客廳、臥室、廚房、餐廳、衛生間、車庫
二 層:臥室(附衛生間,露臺)、臥室(附衣帽間,衛生間)、臥室(附衛生間)
三 層:臥室(附衣帽間,衛生間,露臺)、活動室、衛生間、露臺
很多地區現在正在對農村建房要求不斷的收緊,以后想在農村建房或許并不是一件隨心所欲的事,所以趁著當地還能建房,趕緊建吧。在未來,在城里有房,在農村有別墅,或許將成為判斷一個人成功的標準。
.jpg)
本文由別墅圖紙超市編輯發布,如需了解更多,可登錄網站主頁http://www.wxtmjd.cn/,或者撥打我們的免費電話400-8080-889在線咨詢。
>>>>推薦閱讀:5套帶車庫二層農村別墅,不超過30萬,拿回家立馬蓋
>>>>推薦閱讀:三款自建房別墅圖紙,拯救想建房卻猶豫不決的
>>>>推薦閱讀:十套經典美觀農村別墅(效果圖+ 建房案例),良心推薦!











