想建房的朋友們注意啦!11款三層歐式自建別墅設計圖供你選擇
隨著年底的到來,準備明年開春建造房子的業主也開始籌備了。歐式別墅是目前農村自建房很流行的戶型,外觀簡潔大氣,最重要的是造價也實惠,簡直物美價廉。明年開春想建房的朋友們注意啦!11款三層歐式自建別墅設計圖供你選擇。
.jpg)
主體造價: 40-45萬
開間: 11.1米
進深: 12.3米
占地面積: 137.78平方米
建筑面積: 414.19平方米
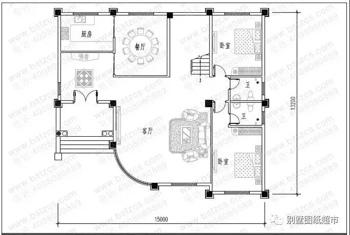
首層戶型:
.jpg)
一 層:門廳、客廳(中空)、臥室(附衛生間)、臥室、廚房、餐廳、衛生間
二 層:起居室、臥室(附書房,衛生間,陽臺)、臥室、棋牌室、衛生間
三 層:健身廳、臥室(附衛生間,露臺)、臥室、書房、衛生間、露臺
.jpg)
主體造價: 45-50萬
開間: 10.946米
進深: 15.9米
占地面積: 155.35平方米
建筑面積: 480.95平方米
首層戶型:
.jpg)
一 層:門廳、客廳(中空)、臥室(附衛生間)、臥室、棋牌室、廚房、餐廳、衛生間
二 層:主臥(附書房,衣帽間,衛生間,2陽臺,露臺)、2臥室、儲存間、衛生間
三 層:健身房(附露臺)、臥室(附衛生間,露臺)、2臥室、書房、衛生間、露臺、涼亭
.jpg)
主體造價: 40-45萬
開間: 13.8米
進深: 10.5米
占地面積: 144.58平方米
建筑面積: 456.42平方米
首層戶型:
.jpg)
一 層:堂屋、客廳、臥室(附衛生間)、臥室、廚房、餐廳、衛生間
二 層:起居室、臥室(附衛生間)、3臥室、書房、棋牌室、衛生間、陽臺
三 層:起居室、臥室(附衛生間)、臥室、娛樂室、衛生間、露臺
.jpg)
主體造價: 40-50萬
開間: 13.2米
進深: 14.1米
占地面積: 168.16平方米
建筑面積: 428.32平方米
首層戶型:
.jpg)
一 層:門廳、客廳(中空)、2臥室、廚房、餐廳、雜物間、儲存間、衛生間
二 層:起居室、主臥(附衣帽間,衛生間)、臥室(附陽臺)、臥室、衛生間
三 層:臥室(附陽臺)、臥室、衛生間、露臺
.jpg)
主體造價: 40-45萬
開間: 13.5米
進深: 10.7米
占地面積: 137.48平方米
建筑面積: 382.95平方米
首層戶型:
.jpg)
一 層:玄關、客廳、臥室、棋牌室、廚房、餐廳、衛生間
二 層:起居室、休息區、客廳、3臥室、衛生間、露臺
三 層:起居室、娛樂區、2臥室、衛生間、2露臺
.jpg)
主體造價: 25-30萬
開間: 12米
進深: 9.3米
占地面積: 97.58平方米
建筑面積: 275.41平方米
首層戶型:
.jpg)
一 層:堂屋、客廳、臥室、廚房、餐廳、儲藏室、衛生間
二 層:起居室、娛樂室、臥室(附陽臺)、臥室、衛生間、露臺
三 層:3臥室、衛生間、露臺
.jpg)
主體造價: 35-40萬
開間: 11.7米
進深: 11.2米
占地面積: 130.04平方米
建筑面積: 336.44平方米
首層戶型:
.jpg)
一 層:客廳(中空)、臥室、棋牌室、廚房、餐廳、儲藏室、衛生間
二 層:小客廳、臥室(附衛生間)、2臥室、衛生間
三 層:活動室、臥室(附衛生間)、臥室、衛生間、露臺
.jpg)
主體造價: 42-48萬
開間: 14.4米
進深: 14.02米
占地面積: 186平方米
建筑面積: 476平方米
首層戶型:
.jpg)
一 層:客廳、2臥室、儲藏室、廚房、餐廳、衛生間
二 層:健身房(附陽臺)、臥室(附衣帽間,衛生間)、臥室(附衛生間)
三 層:主臥(附衣帽間,衛生間)、臥室(附衣帽間,衛生間)、臥室(附衛生間)、書房、兒童房(附露臺)
.jpg)
主體造價: 35-40萬
開間: 15.6米
進深: 10.3米
占地面積:143.38平方米
建筑面積:435.4平方米
首層戶型:
.jpg)
一 層:堂屋、客廳、臥室(附衛生間)、廚房、餐廳、衛生間、車庫
二 層:起居室、臥室(附陽臺)、臥室(附衛生間)、2臥室、衛生間、陽臺
三 層:起居室、娛樂廳、臥室(附衛生間)、書房(附陽臺)、衛生間、露臺
.jpg)
主體造價: 50萬以上
開間: 15米
進深: 13.2米
占地面積: 165.47平方米
建筑面積: 548.51平方米
首層戶型:
.jpg)
一 層:客廳(中空)、臥室(附衛生間)、臥室、廚房、餐廳、衛生間
二 層:起居室、2臥室(附衛生間)、衛生間、露臺
三 層:主臥(附更衣室,衛生間)、2臥室(附衛生間)、露臺
.jpg)
主體造價: 30-35萬
開間: 11.6米
進深: 11.4米
占地面積: 116.5平方米
建筑面積: 298.3平方米
首層戶型:
.jpg)
一 層:門廳、客廳(中空)、臥室、廚房、餐廳、衛生間
二 層:起居室(附陽臺)、3臥室、衛生間、陽臺
三 層:娛樂室、3臥室、衛生間、露臺
.jpg)
本文由別墅圖紙超市編輯發布,如需了解更多,可登錄網站主頁http://www.wxtmjd.cn/,或者撥打我們的免費電話400-8080-889在線咨詢。
>>>>推薦閱讀:在農村建一個這樣的三層歐式別墅,美觀大方不過時
>>>>推薦閱讀:復式三層帶車庫簡歐別墅,大玻璃落地窗見證房子的優雅與時尚
>>>>推薦閱讀:自建三層簡歐風格別墅,造價不過30萬卻能讓別墅經典又耐看











