10套三層復式獨棟小別墅,客廳大空間,氣派十足!
三層的農村自建房小別墅,既簡約時尚,造價又經濟實惠,遠離了城市的喧囂和污染,回歸鄉野田間的自然生活,能在家鄉建一棟屬于自己的小別墅,肯定是城里人非常醒目的一件事。因為只需要一半的商品房首付款就能建一套面積超大的小別墅,不僅減輕了經濟上的壓力,而且還給了我們跟多的時間去享受美好的生活!
編號: DC0343
層數: 三層
結構形式: 框架結構
主體造價: 40-45萬
開間: 12米
進深: 14.1米
占地面積: 146.27平方米
建筑面積: 444.19平方米




一 層: 門廳、客廳(中空)、臥室(附衛生間)、臥室、廚房、餐廳、觀景平臺、衛生間
二 層: 起居室、臥室(附衛生間)、臥室(附書房,陽臺)、臥室(附露臺)、衛生間
三 層: 健身廳、臥室(附衛生間)、臥室(附書房,露臺)、臥室、衛生間、露臺
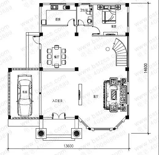
編號: DC0309
層數: 三層
結構形式: 磚混結構
主體造價: 40-45萬
開間: 17.4米
進深: 11.7米
占地面積: 177.42平方米
建筑面積: 537.85平方米


一 層: 門廳、客廳(中空)、臥室(附衛生間)、廚房、餐廳、衛生間、車庫
二 層: 起居室、臥室(附書房,衣帽間,衛生間,陽臺,露臺)、臥室(附陽臺)、衛生間
三 層: 健身房、臥室(附衛生間,露臺)、臥室(附露臺)、2臥室(附陽臺)、衛生間
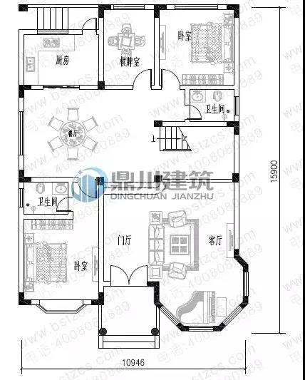
編號: DC0305
層數: 三層
結構形式: 框架結構
主體造價: 45-50萬
開間: 10.946米
進深: 15.9米
占地面積: 155.35平方米
建筑面積: 480.95平方米


一 層: 門廳、客廳(中空)、臥室(附衛生間)、臥室、棋牌室、廚房、餐廳、衛生間
二 層: 主臥(附書房,衣帽間,衛生間,2陽臺,露臺)、2臥室、儲存間、衛生間
三 層: 健身房(附露臺)、臥室(附衛生間,露臺)、2臥室、書房、衛生間、露臺、涼亭
編號: DC0292
層數: 三層
結構形式: 框架結構
主體造價: 30-35萬
開間: 12米
進深: 12米
占地面積: 135.42平方米
建筑面積: 366.13平方米


一 層: 過廳、客廳(中空)、2臥室、廚房、餐廳、衛生間
二 層: 客廳、2臥室(附陽臺)、2臥室、衛生間
三 層: 客廳、臥室(附陽臺)、3臥室、衛生間、露臺
編號: DC0248
層數: 三層
結構形式: 框架結構
主體造價: 45-50萬
開間: 15米
進深: 11.4米
占地面積: 151.84平方米
建筑面積: 383.9平方米


一 層: 玄關、客廳(中空)、臥室、廚房、餐廳、衛生間、車庫
二 層: 休息廳、臥室(附衛生間,陽臺)、臥室(附陽臺)、臥室、衛生間
三 層: 客廳(附露臺)、臥室(附衛生間,陽臺)、臥室(附陽臺)、臥室、衛生間、露臺
閣 樓: 涼亭、儲藏間
編號: DC0236
層數: 三層
結構形式: 框架結構
主體造價: 30-36萬
開間: 10米
進深: 11.6米
占地面積: 107.11平方米
建筑面積: 269.92平方米


一 層: 門廳、客廳(中空)、臥室、廚房、餐廳、衛生間
二 層: 客廳(附陽臺)、臥室(附陽臺)、臥室、衛生間
三 層: 客廳(附陽臺)、臥室(附陽臺)、2臥室、衛生間
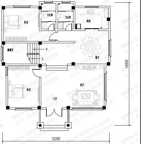
編號: DC0226
層數: 三層
結構形式: 框架結構
主體造價: 36-42萬
開間: 13.6米
進深: 14.6米
占地面積: 156.09平方米
建筑面積: 393.15平方米


一 層: 入口玄關、客廳(中空)、臥室、廚房、餐廳、衛生間、車庫
二 層: 主臥(附書房,衛生間,陽臺)、臥室(附書房,陽臺)、臥室、衛生間
三 層: 活動廳(附露臺)、主臥(附衛生間,2露臺)、臥室(附書房,陽臺)、臥室、衛 生間
編號: DC0225
層數: 三層
結構形式: 磚混結構
主體造價: 20-25萬
開間: 11.2米
進深: 11.7米
占地面積: 125.7平方米
建筑面積: 305.12平方米


一 層: 客廳(中空)、臥室、廚房、餐廳、衛生間、車庫
二 層: 客廳、臥室(附陽臺)、2臥室、書房、衛生間
三 層: 臥室(附書房)、2臥室、衛生間、露臺
編號: DC0168
層數: 三層
結構形式: 框架結構
主體造價: 36-42萬
開間: 12.2米
進深: 14米
占地面積: 143.47平方米
建筑面積: 414.96平方米


一 層: 門廳、客廳(中空)、臥室、臥室(附衛生間)、廚房、餐廳、儲藏室、衛生間
二 層: 起居室(附陽臺)、2臥室(附衛生間)、臥室(附陽臺)、衛生間
三 層: 臥室(附衛生間,衣帽間,陽臺)、健身房、書房、露臺
編號: DC0143
層數: 三層
結構形式: 框架結構
主體造價: 34-40萬
開間: 13.3米
進深: 14.6米
占地面積: 147.7平方米
建筑面積: 366.4平方米


一 層: 入口玄關、客廳、餐廳、廚房、客房、衛生間、車庫
二 層: 臥室、臥室(附陽臺)、臥室(附書房,衛生間,陽臺)、衛生間
三 層: 活動廳(附露臺)、臥室、臥室(附露臺)、臥室(附書房,衛生間,陽臺)、衛生間
.jpg)
本文由別墅圖紙超市編輯發布,如需了解更多,可登錄網站主頁http://www.wxtmjd.cn/,或者撥打我們的免費電話400-8080-889在線咨詢。
>>>>推薦閱讀:想在農村住別墅的,來看看這15款別人家的農村別墅,款款驚艷!
>>>>推薦閱讀:10套占地90平左右農村別墅,功能齊全,是小戶型的理想選擇
>>>>推薦閱讀:13套新農村別墅,沉穩大氣有內涵,建房好戶型!











