10套占地90平左右農村別墅,功能齊全,是小戶型的理想選擇
地基面積不夠大,又想要建出一套美觀大方又實用的戶型怎么辦,今天小編就給大家整理了幾套占地90平米左右的農村自建房設計方案,外觀大氣簡約,室內功能齊全,是小戶型的理想選擇;就算地基小,一樣可以建個美美的自建房,不用再羨慕別人了。
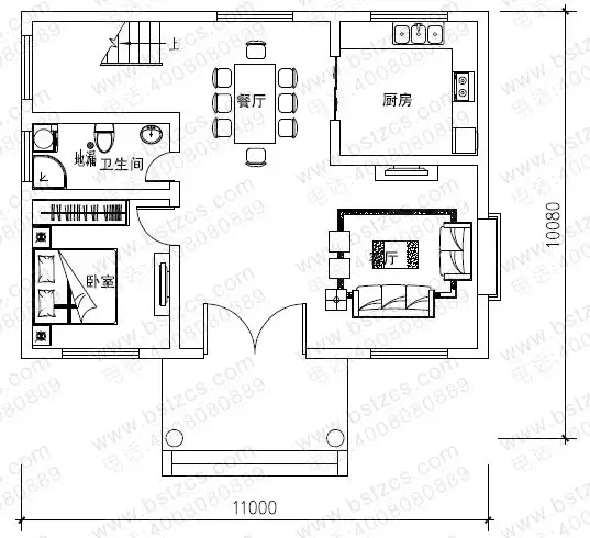
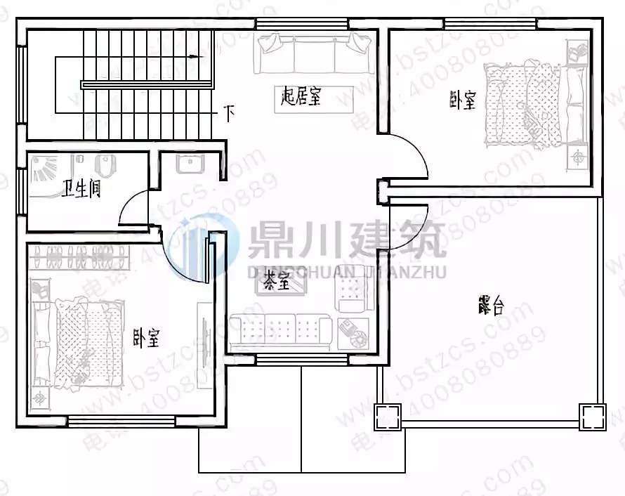
二層帶露臺小別墅
.jpg)
編號: DC0383
結構形式: 磚混結構
主體造價: 18-25萬
開間: 9米 進深: 9.9米
占地面積: 90平方米
建筑面積: 202.5平方米
.jpg)
.jpg)
一 層:客廳、臥室、廚房、餐廳、衛生間
二 層:起居廳、2臥室、書房、衛生間、露臺
三層歐式小別墅設計
.jpg)
建成案例:
.jpg)
編號: DC0276
結構形式: 框架結構
主體造價: 25-30萬
開間: 12米 進深: 9.3米
占地面積: 97.58平方米
建筑面積: 275.41平方米
首層戶型:
.jpg)
一 層:堂屋、客廳、臥室、廚房、餐廳、儲藏室、衛生間
二 層:起居室、娛樂室、臥室(附陽臺)、臥室、衛生間、露臺
三 層:3臥室、衛生間、露臺
農村三層小戶型自建房
.jpg)
編號: DC0372
結構形式: 磚混結構
主體造價: 24-28萬
開間: 11.3米 進深: 7.8米
占地面積: 94.85平方米
建筑面積: 271.98平方米
首層戶型:
.jpg)
二層戶型:
.jpg)
三層戶型:
.jpg)
一 層:門廳、客廳、臥室、廚房、餐廳、衛生間
二 層:起居室、娛樂室(附陽臺)、3臥室、衛生間
三 層:起居室、茶室、2臥室、衛生間、露臺
農村三層帶露臺小別墅
.jpg)
.jpg)
編號: DC0312
結構形式: 磚混結構
主體造價: 22-26萬
開間: 9.9米 進深: 9.6米
占地面積: 92.94平方米
建筑面積: 274.1平方米
首層戶型:
.jpg)
一 層:客廳、臥室、廚房、餐廳、衛生間
二 層:休息區、臥室(附書房,衣帽間,陽臺)、臥室、儲存間、衛生間
三 層:臥室(附書房,衣帽間,陽臺)、臥室(附露臺)、衛生間
二層半帶露臺農村自建房
.jpg)
.jpg)
編號: DC0110
結構形式: 磚混結構
主體造價: 15-20萬
開間: 9米 進深: 10.6米
占地面積: 97.87平方米
建筑面積: 238.3平方米
首層戶型:
.jpg)
一 層:客廳、臥室、廚房、餐廳、衛生間
二 層:臥室(附陽臺)、臥室(附衣帽間)、臥室、衛生間
三 層:娛樂室、露臺
農村二層帶露臺自建房
.jpg)
編號: DC0060
結構形式: 磚混結構
主體造價: 18-22萬
開間: 11米 進深: 10.08米
占地面積: 90.2平方米
建筑面積: 196.92平方米
首層戶型:
.jpg)
一 層:客廳、臥室、廚房、餐廳、衛生間
二 層:客廳(附陽臺)、活動廳、3臥室、衛生間
帶地下室農村別墅設計圖
.jpg)
編號: DC0098
結構形式: 磚混結構
主體造價: 18-23萬
開間: 10.44米 進深: 11.24米
占地面積: 97.3平方米
建筑面積: 265.1平方米
首層戶型:
.jpg)
技術層:車庫、儲藏間
一 層:客廳、臥室、活動室、廚房、餐廳、衛生間、陽臺
二 層:起居室、主臥(附步入式衣柜,衛生間,陽臺)、2臥室、書房、衛生間
一層坡屋頂小別墅
.jpg)
建成案例:
.jpg)
編號: DC0070
結構形式: 磚混結構
主體造價: 10-13萬
開間: 11.1米 進深: 9米
占地面積: 91.94平方米
建筑面積: 104.13平方米
首層戶型:
.jpg)
一 層:客廳、3臥室、廚房、餐廳、衛生間
新農村二層小別墅
.jpg)
.jpg)
編號: DC0050
結構形式: 磚混結構
主體造價: 19-22萬
開間: 10.2米 進深: 9.6米
占地面積: 92.29平方米
建筑面積: 201.08平方米
首層戶型:
.jpg)
一 層:客廳、臥室(附衛生間)、廚房、餐廳、衛生間
二 層:客廳、臥室(附衛生間)、臥室、衛生間、陽臺
新農村二層小別墅自建房
.jpg)
編號: DC0345
結構形式: 磚混結構
主體造價: 20-25萬
開間: 12.9米 進深: 9.5米
占地面積: 94.32平方米
建筑面積: 204.17平方米
首層戶型:
.jpg)
二層戶型:
.jpg)
一 層:客廳、臥室(附衛生間)、廚房、餐廳、衛生間、儲存間、車庫
二 層:主臥(附衣帽間,衛生間,露臺)、臥室(附衣帽間,衛生間)
90平方米左右的戶型在農村來說算是小戶型了,當宅基地空間有限,又想設計出舒適的住房體驗,該怎么設計呢?上面這10款占地90平方米左右的農村自建房設計就很實用,喜歡的就買回去建吧!
.jpg)
本文由別墅圖紙超市編輯發布,如需了解更多,可登錄網站主頁http://www.wxtmjd.cn/,或者撥打我們的免費電話400-8080-889在線咨詢。
>>>>推薦閱讀:16款定制設計款農村別墅,花大價錢設計的圖紙到底值不值?
>>>>推薦閱讀:10套占地130平農村別墅,二層三層都有,下半年建房不愁了!
>>>>推薦閱讀:15套大氣體面圖紙,第7款看過的都想建(多張效果圖)











