7款開間12米的二層農村自建房,看了都為它的實用性點贊!
農村批地真的較之以前困難了許多,但是這也抵擋不了農村人建房的決心,最近幾年很多朋友都加緊了批地建房的步伐,在老家建一棟好看結實的房子供家里父母居住,也給自己養老做準備。今年小編分享的幾款二層的小別墅,開間12米,造價經濟,戶型實用!
編號: DC0310
層數: 二層
結構形式: 磚混結構
主體造價: 28-32萬
開間: 12米
進深: 10.8米
占地面積: 116.32平方米
建筑面積: 314.95平方米
一 層: 客廳、2臥室、廚房、餐廳、衛生間
二 層: 客廳、臥室(附衛生間)、2臥室、棋牌室、衛生間、陽臺
圖紙預覽:
編號: DC0282
層數: 二層
結構形式: 磚混結構
主體造價: 16-20萬
開間: 12米
進深: 8米
占地面積: 100.86平方米
建筑面積: 227.77平方米
一 層: 堂屋、客廳、臥室、廚房、餐廳、衛生間
二 層: 客廳(附陽臺)、臥室(附陽臺)、臥室、兒童房、書房、衛生間
圖紙預覽:
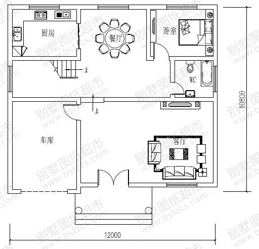
編號: DC0215
層數: 二層 結
構形式: 磚混結構
主體造價: 19-24萬
開間: 12米
進深: 10.8米
占地面積: 130.23平方米
建筑面積: 260.46平方米
一 層: 客廳、臥室、廚房、餐廳、衛生間、車庫
二 層: 客廳(附陽臺)、主臥(附衛生間)、3臥室、 棋牌室、衛生間
圖紙預覽:
編號: DC0214
層數: 二層
結構形式: 磚混結構
主體造價: 19-24萬
開間: 12米
進深: 10.8米
占地面積: 130.23平方米
建筑面積: 260.46平方米
一 層: 客廳、臥室、廚房、餐廳、衛生間、車庫
二 層: 客廳(附陽臺)、主臥(附衛生間)、3臥室、棋牌室、衛生間
圖紙預覽:
編號: DC0154
層數: 二層
結構形式: 磚混結構
主體造價: 26-30萬
開間: 12米
進深: 11.7米
占地面積: 115.33平方米
建筑面積: 332.7平方米
一 層: 門廳、客廳、臥室(附衛生間)、廚房、餐廳、衛生間
二 層: 起居室、臥室(附衛生間)、臥室(附陽臺)、書房(附陽臺)、衛生間、露臺
編號: DC0147
層數: 二層帶閣樓
結構形式: 磚混結構
主體造價: 24-28萬
開間: 12米
進深: 10.8米
占地面積:126.43平方米
建筑面積:312.77平方米
一 層: 走廊、客廳、臥室(附儲藏間)、廚房、 餐廳、儲藏間、衛生間
二 層: 主臥(附書房,衛生間)、臥室(附陽臺 )、臥室、走入式衣柜、衛生間
閣 樓: 儲藏間
圖紙預覽:
編號: DC0150
層數: 二層
結構形式: 磚混結構
主體造價: 18-25萬
開間: 12米
進深: 11.1米
占地面積: 125.03平方米
建筑面積: 271.92平方米
一 層: 客廳、臥室、廚房、餐廳、衛生間、車庫
二 層: 起居室、主臥(附書房,儲藏室,陽臺)、2臥室、衛生間、露臺
圖紙預覽:
<
.jpg)
本文由別墅圖紙超市編輯發布,如需了解更多,可登錄網站主頁http://www.wxtmjd.cn/,或者撥打我們的免費電話400-8080-889在線咨詢。
>>>>推薦閱讀:30余款最新設計:造型大方又體面,都是適合老百姓建的好房子!
>>>>推薦閱讀:農村建房還是二層最實用!經典二層自建別墅,12款戶型任選!
>>>>推薦閱讀:面寬不足10米的14款農村小別墅,窄面寬難不倒好設計!











