三層框架別墅設計圖紙的建房實拍,28萬建成讓老父親驕傲無比!
在農村,大家的生活環境和賺錢能力都差不多的情況下,最愛的就是拿孩子來相互做對比。 每到逢年過節的討論的最多的就是誰家娃又在外面有了生命成績,誰家娃又賺大錢了。因此未來能讓父母在農村安享晚年,很多外打工的人賺了錢,都會選擇回老家建一棟新房或者農村別墅。所以近些年回到家鄉,你只會看到老家新房棟棟崛起,也算是新農村的一大特色了。
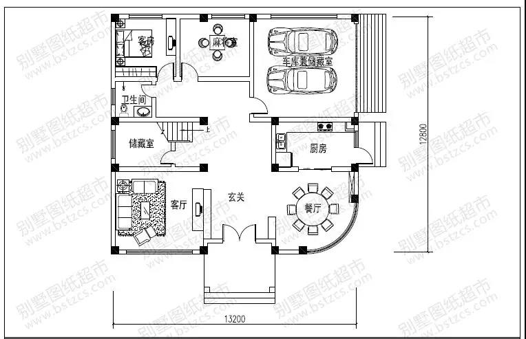
這是房子建好之后的實拍,怎么樣好看吧!下面先曬曬原來的效果圖和戶型圖~
編號: DC0111
結構形式: 框架結構
開間: 13.2米 進深: 12.8米
占地面積: 170.38平方米
建筑面積: 412.72平方米
主體造價: 38-42萬
一 層:客廳、麻將室、客房、廚房、餐廳、衛生間、儲藏室、車庫
二 層:起居室(附陽臺)、2臥室(衛生間)、臥室、娛樂室(附陽臺)、衛生間
三 層:家庭室、儲藏室、臥室(附衛生間)、露臺
從紀念老房子開始···
老房子承載了我或喜或悲的童年···
墻上的獎狀記載著我的學習生涯.....
正式開工!
村子里在家的壯勞力都來幫忙了,謝謝我的父老鄉親。第二天,挖機來三下五去二就把老房子拆個精光,照片都忘了拍。
打底的石子上場,拖拉機共拉了3車約3.5方每車。
接下去澆最底層水泥。小插曲:拖拉機運來水泥居然說不卸貨,硬要我自己找人卸,差點叫他拖回去。
我的父老鄉親啊,謝謝你們!我的奶媽,辛苦了!
模板開始。可愛的木工,你的卷發真的很有特色···
澆筑地梁桶墻
最左邊的是我二姐夫,同村的,他是砌石墻的大工,平時在外干活基本都是280一天,我蓋房子就是二姐和二姐。
模樣初成
估計有十幾處遺憾的地方,明年就要把它埋入地下了,希望不會對百年大計產生大影響。
年前的成果
正月初五,開工!河里一臺挖機,工地一臺挖機,小伙伴的車4輛,一天墊方完成!地基高1.9米,面積約110平,約200方,車來來回回不知跑了多少趟。
墊方完成
至此,地基完成,花費巨大至此,地基完成,花費巨大。
二姐夫和弟弟在砌石墻,然后在枇杷樹底下要做化糞池。
焊柱子鋼筋,很貴,8塊錢一個接頭 86個頭,優惠后付了660包工頭說柱子不用這么多鋼筋,4根夠了,我想想還是不減,6根16的。
第一層的鋼筋和柱子。
開始砌墻了,接下來就是裝膜,澆筑樓板等一系列建造過程,就不多說了,直接上最后的幾個成形,然后裝飾,完工的效果圖,看看是不是很美!
老爸84了,看著自家的房子這樣的漂亮,高興的不得了,一天到晚在清理垃圾,叫他歇歇也不聽。雖然覺得老父親辛苦了,但是其實自己內心也是很驕傲的,能讓父親高興也算是我的心愿了。
.jpg)
本文由別墅圖紙超市編輯發布,如需了解更多,可登錄網站主頁http://www.wxtmjd.cn/,或者撥打我們的免費電話400-8080-889在線咨詢。
>>>>推薦閱讀:建房自述:湖南小伙花20萬自建一套有花有樹有院子的歐美小別墅!
>>>>推薦閱讀:網友回鄉自建房全過程實拍,效果美到鄉親們紛紛跑來拍照!
>>>>推薦閱讀:不管從外觀和裝修都堪稱經典的二層中式別墅,至少值1000萬!











