新建自建房的懸挑陽臺開裂咋辦?教你懸挑結構施工的正確做法!
每個人對美的追求都不一樣,但是對美的熱愛都是一樣的。在自建房的時候,如果能巧妙的使用一些有花樣的懸挑結構,如陽臺、露臺、雨棚等,不僅可以給房子增添亮色而且讓房子顯得更加專業,畢竟四四方方的砌盒子,實在沒有什么技術含量!
.jpg)
但是嘍,玫瑰嫵媚卻是帶刺的,想要做好一個懸挑構件,技術性上不能大意,不然畫虎不成反類犬還有安全隱患,那就得不償失了!今天小編就和大家說說懸挑結構的施工要點。
.jpg)
一、懸挑結構的類型
鋼筋混凝土懸挑構件有挑板式和挑梁式2種,挑板式是指以樓層圈梁為支座,向結構外延伸的板。挑梁式是指梁從主體結構中的主梁或次梁延伸出來,延伸出的端部沒有支承的豎向受力梁,而板則由梁支撐。
.jpg)
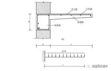
二、懸挑結構的配筋
懸挑構件,無論是板還是梁,懸挑結構的根部是受力最大的地方,也是最容易破壞的地方。在根部,上部受拉、下部受壓,所以其配筋和一般梁、板的配筋是相反的,受力筋要布置在結構的上部而不是下部,這一點千萬不能搞錯了!
.jpg)
▲挑板式懸挑配筋示意圖
.jpg)
▲懸挑梁配筋示意圖
但很多施工隊在綁扎鋼筋過程中卻沒有處理好,或者綁扎好了但在澆筑混凝土過程中卻將鋼筋踩了下去,這就導致懸挑構件在使用過程中,懸挑根部斷裂!
.jpg)
▲懸挑陽臺斷裂
三、懸挑結構長度
懸挑結構施工難,主筋受力大,所以其懸挑長度不大,自建房就更小了。一般較為合理的懸挑長度最好控制在1m~1.5m,而且與懸挑構件相連的樓板或梁的長度要大于懸挑長度的1.5倍。如果再長,就只能在懸挑構件的端部做承重柱了。
.jpg)
四、懸挑構件拆模時間
房屋主體梁、板、柱的拆模時間比較早,一般1~2個星期就可以了,但懸挑構件卻不行,為保證安全必須要等到混凝土終凝后,強度達到100%才能拆模!
.jpg)
.jpg)
本文由別墅圖紙超市編輯發布,如需了解更多,可登錄網站主頁http://www.wxtmjd.cn/,或者撥打我們的免費電話400-8080-889在線咨詢。
>>>>推薦閱讀:自建房裝修油漆用量的計算方法,學會了能省不少錢!
>>>>推薦閱讀:自建房電路改造前應知道的22點注意,早早知道不踩坑!
>>>>推薦閱讀:農村自建房裝修,結構拆改的原則及注意事項有哪些?











