面寬不足10米的14款農村小別墅,窄面寬難不倒好設計!
宅基地面寬太小,必是給許多建房者帶來困擾。尋找合適的別墅圖紙很是不易,有些平面布置合適了,外觀造型卻不如意。更何況是面寬小,進深長,東西兩面還沒有足夠的采光宅基地,這就更不好設計了。今天給大家分享14款面寬不足10米的自建別墅圖紙,總有一款適合你。
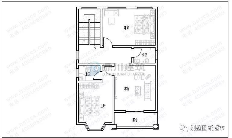
二層帶露臺小戶型別墅

編號: DC0366
結構形式: 磚混結構
開間: 8米 進深: 12.3米
占地面積: 100.91平方米
建筑面積: 211.08平方米
主體造價: 18-22萬
首層戶型:

二層戶型:

一 層:客廳、臥室(附衛生間)、廚房、餐廳、衛生間
二 層:客廳(附露臺)、臥室(附衛生間)、臥室、衛生間
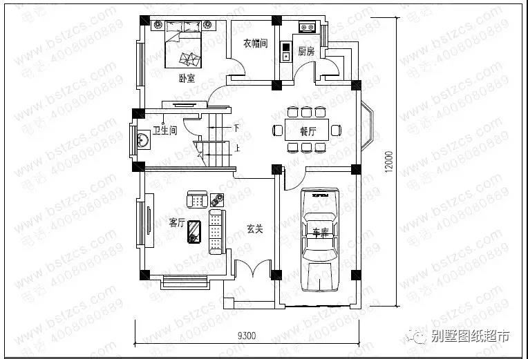
農村三層帶露臺小別墅


編號: DC0312
結構形式: 磚混結構
開間: 9.9米 進深: 9.6米
占地面積: 92.94平方米
建筑面積: 274.1平方米
主體造價: 22-26萬
首層戶型:

圖紙預覽:

一 層:客廳、臥室、廚房、餐廳、衛生間
二 層:休息區、臥室(附書房,衣帽間,陽臺)、臥室、儲存間、衛生間
三 層:臥室(附書房,衣帽間,陽臺)、臥室(附露臺)、衛生間
臨街四層帶商鋪自建房屋


編號: DC0231
結構形式: 框架結構
開間: 8米 進深: 12.3米
占地面積: 103.33平方米
建筑面積: 407.9平方米
主體造價: 28-32萬
首層戶型:

圖紙預覽:

一 層:商鋪、廚房、餐廳、衛生間
二 層:客廳、主臥(附陽臺,衛生間)、臥室、廚房、餐廳、衛生間
三 層:客廳、臥室(附陽臺、衛生間)、臥室(附書房)、臥室、衛生間
四 層:客廳、臥室(附書房)、臥室、衛生間、露臺
新農村三層小別墅


編號: DC0178
結構形式: 磚混結構
開間: 9米 進深: 11.6米
占地面積: 100.6平方米
建筑面積: 209.93平方米
主體造價: 24-28萬
首層戶型:

圖紙預覽:

一 層:客廳、臥室、廚房、餐廳、雜物間、衛生間
二 層:臥室(附陽臺,衣帽間,衛生間)、2臥室、衛生間
三 層:臥室(附衛生間,陽臺)
農村三層帶車庫自建房

編號: DC0174
結構形式: 磚混結構
開間: 9.2米 進深: 10.63米
占地面積: 100平方米
建筑面積: 280平方米
主體造價: 18-22萬
首層戶型:

圖紙預覽:

一 層:客廳、臥室、廚房、餐廳、衛生間、車庫
二 層:臥室(附陽臺)、3臥室、衛生間
三 層:3臥室、衛生間、露臺
新農村三層自建房


編號: DC0138
結構形式: 磚混結構
開間: 9.84米 進深: 12.54米
占地面積: 112.67平方米
建筑面積: 313.13平方米
主體造價: 22-26萬
首層戶型:

圖紙預覽:

一 層:客廳、老人房、廚房、餐廳、衛生間、車庫
二 層:主臥(附書房,衛生間,陽臺)、臥室(附陽臺)、臥室、衛生間
三 層:主臥(附書房,衛生間,陽臺)、臥室(附陽臺)、臥室、衛生間
漂亮的三層復式別墅


編號: DC0116
結構形式: 框架結構
開間: 9.3米 進深: 12米
占地面積: 102.16平方米
建筑面積: 231.01平方米
主體造價: 30-35萬
首層戶型:

圖紙預覽:

一 層:客廳(中空)、臥室(附衣帽間)、廚房、餐廳、衛生間、車庫
二 層:主人房(附衣帽間,衛生間,露臺)、臥室(附衣帽間,衛生間)
三 層:臥室(附衛生間,陽臺)、臥室(附衛生間)、露臺
三層新農村住宅


編號: DC0021
結構形式: 磚混結構
開間: 8米 進深: 10.1米
占地面積: 78.6平方米
建筑面積: 202.92平方米
主體造價: 19-22萬
首層戶型:

圖紙預覽:

一 層:客廳、臥室、廚房兼餐廳、衛生間
二 層:起居室(附陽臺)、臥室(附衣帽間)、臥室、衛生間
三 層:臥室(附露臺)、臥室(附陽臺)、衛生間
農村三層自建別墅

編號: DC0052
結構形式: 磚混結構
開間: 9.6米 進深: 10.6米
占地面積: 89.29平方米
建筑面積: 233.9平方米
主體造價: 16-20萬
首層戶型:

圖紙預覽:

一 層:客廳、臥室、雜物間、廚房、餐廳、衛生間
二 層:客廳(附陽臺)、3臥室、衛生間
三 層:臥室、儲藏室、衛生間、曬臺
三層鄉村別墅圖紙

編號: DC0045
結構形式: 磚混結構
開間: 8.55米 進深: 11.6米
占地面積: 101.99平方米
建筑面積: 274.63平方米
主體造價: 20-25萬
首層戶型:

圖紙預覽:

一 層:客廳、臥室(附衣帽間)、廚房、餐廳、洗衣間、衛生間
二 層:客廳、臥室(附陽臺)、2臥室、書房、衛生間
三 層:臥室(附陽臺)、3臥室、衛生間、露臺
農村三層別墅

編號: DC0038
結構形式: 磚混結構
開間: 7米 進深: 11.1米
占地面積: 76.53平方米
建筑面積: 219.9平方米
主體造價: 18-22萬
首層戶型:

圖紙預覽:

一 層:客廳、臥室、廚房、餐廳、衛生間、儲藏室
二 層:小客廳(附陽臺)、2臥室、書房、衛生間
三 層:多功能房、2臥室、衛生間、露臺
農村三層自建別墅

編號: DC0024
結構形式: 磚混結構
開間: 8.9米 進深: 8.4米
占地面積: 75.61平方米
建筑面積: 252.39平方米
主體造價: 18-22萬
首層戶型:

圖紙預覽:

一 層:客廳、臥室、廚房(兼餐廳)、衛生間
二 層:客廳(附陽臺)、2臥室、衛生間
三 層:臥室(附陽臺)、2臥室、衛生間
新農村二層半自建房


編號: DC0227
結構形式: 磚混結構
開間: 9米 進深: 10.6米
占地面積: 97.87平方米
建筑面積: 238.3平方米
主體造價: 15-20萬
首層戶型:

圖紙預覽:

一 層:客廳、臥室、廚房、餐廳、衛生間
二 層:臥室(附陽臺)、臥室(附衣帽間)、臥室、衛生間
三 層:娛樂室、露臺
農村二層自建別墅

編號: DC0016
結構形式: 磚混結構
開間: 8.6米 進深: 10.4米
占地面積: 87.7平方米
建筑面積: 162.8平方米
主體造價: 12-16萬
首層戶型:

圖紙預覽:

一 層:客廳、臥室、廚房、餐廳、儲藏室、衛生間
二 層:主臥(附書房,露臺)、2臥室、衛生間
宅地面積小,建高層無疑是一種有效利用面積的方法。但其實,理想的居所,不一定要很大的房子,夠住,有家的溫暖便足矣!
.jpg)
本文由別墅圖紙超市編輯發布,如需了解更多,可登錄網站主頁http://www.wxtmjd.cn/,或者撥打我們的免費電話400-8080-889在線咨詢。
>>>>推薦閱讀:這15套農村小別墅,堪稱農村建房典范,造價便宜布局還超實用!
>>>>推薦閱讀:7套農村新中式四合院,一套比一套美,有庭有院過美好生活!
>>>>推薦閱讀:10款簡潔大方經濟型三層自建別墅,第1款造價20萬,第6款最漂亮!











