歐式三層別墅施工圖紙及效果圖_農村自建別墅設計,鼎川建筑
購圖前重要說明:
購買本套圖紙僅提供打印好的圖紙一份,我們不出售電子文件、光盤。我們設計的圖紙非常詳細,用A3規格打印圖紙,比傳統藍圖更清晰、容易復印、方便收藏,可以直接應用到施工現場。售后服務僅為圖紙答疑,不包任何修改,因為只要其中一張圖紙改變,其它圖紙相應均需修改,工作量較大,所以我們不包修改。如果您個性要求較多需按要求訂做設計,請查看 別墅設計業務流程,并聯系設計客服咨詢設計收費標準。
詳細介紹
| 圖紙屬性 | |||
| 編號: DC1275 | 層數: 三層 | 結構形式: 框架結構 | 主體造價: 60-70萬 |
| 開間: 14米 | 進深: 12.5米 | 占地面積: 189平方米 | 建筑面積: 522平方米 |
| 圖紙內容 | ||||
| 建 筑 圖: | 包含建筑總說明、平面圖、立面圖、剖面圖、樓梯大樣圖、門窗尺寸、節點大樣等 | |||
| 結 構 圖: | 包含基礎平面施工圖、各層梁、柱、樓板配筋及大樣圖等 | |||
| 給排水圖: | 包含各層給排水平面圖、給排水系統圖及大樣圖等 | |||
| 電 氣 圖: | 包含配電系統圖、各層照明平面圖、插座平面圖、弱電平面圖、防雷以及接地平面圖等 | |||
| 設計功能 | ||||
| 一 層: | 門廳(中空)、客廳、茶室、廚房、餐廳、臥室(附衛生間)、衛生間 | |||
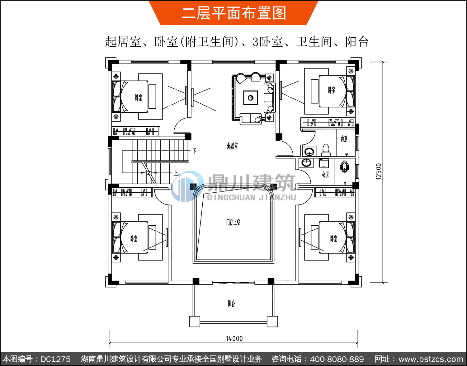
| 二 層: | 起居室、臥室(附衛生間)、3臥室、衛生間、陽臺 | |||
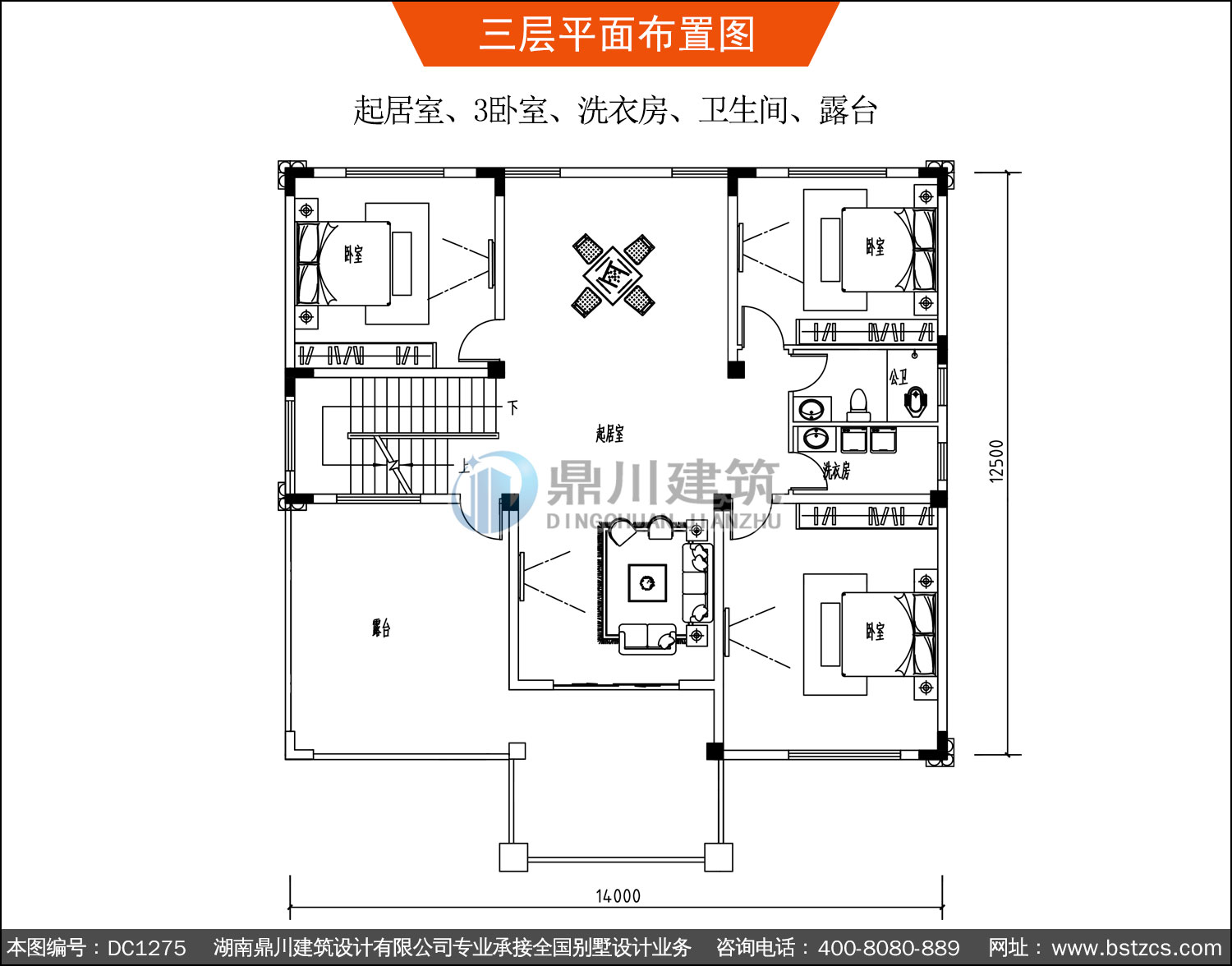
| 三 層: | 起居室、3臥室、洗衣房、衛生間、露臺 | |||
效果圖:





















相關推薦
-
歐式三層帶旋轉樓梯別墅設計施工圖紙_農村三層復式自建房別墅設
¥1980.00 查看
-
大氣的三層帶旋轉樓梯復式別墅效果圖及施工圖紙_新農村歐式三層
¥2980.00 查看
-
復式三層帶露臺歐式別墅全套施工圖紙及效果圖_農村三層自建房屋
¥1980.00 查看
-
農村三層帶露臺歐式別墅施工圖紙及效果圖_鄉村三層自建房屋設計
¥1980.00 查看














