二層帶閣樓別墅設計,多臥室帶露臺,主體造價28萬能搞定!
二層別墅很重要的一點就是相當的經濟實用,不但戶型能滿足大部分人的需要,而且還能根據宅基地的大小設計不同的外觀造型。像今天這款二層帶閣樓別墅就是因為多了個閣樓的設計,就讓房子在時尚的基礎上多了一層立體感,相信看過的人都會記住這棟漂亮的房子。而且今天小編還帶來了它的建造實拍,歡迎大家來探討。
效果圖

編號: DC0186
層數: 二層帶閣樓
結構形式: 磚混結構
主體造價: 23-28萬
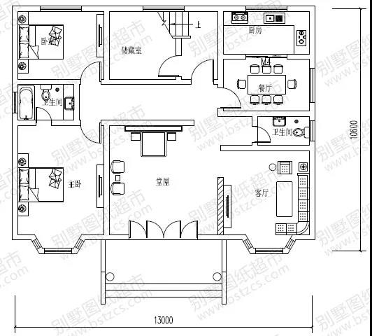
開間: 13米
進深: 10.6米
占地面積: 137.9平方米
建筑面積: 272.7平方米

布局說明
一 層: 堂屋、客廳、主臥(附衛生間)、臥室、廚房、餐廳、儲藏室、衛生間
二 層: 客廳(附陽臺)、主臥(附衛生間)、3臥室、衛生間
閣 樓: 儲藏間
建房案例

建房案例說明
寬大的門斗,大氣的羅馬柱凈顯歐式的霸氣和時尚。
在配色上采用的是黃色的基調,再加上白色作為點綴,淡雅經典。
窗戶的造型和屋頂的老虎窗更顯房子的立體感。
.jpg)
本文由別墅圖紙超市編輯發布,如需了解更多,可登錄網站主頁http://www.wxtmjd.cn/,或者撥打我們的免費電話400-8080-889在線咨詢。
>>>>推薦閱讀:客戶定制的二層歐美風格別墅效果圖賞析,好戶型值得被認可!
>>>>推薦閱讀:農村三層經典歐式別墅,12米×12米挑空客廳盡顯尊貴大氣
>>>>推薦閱讀:二層帶獨立廚房別墅設計,簡約大氣,不同立面都超美!











