10套建房圖紙推薦,把家建成理想中的樣子(實拍案例+平面圖)
家是很多人心中最重要的地方,它不僅僅是一個遮風避雨的地方更是人心中的港灣。為何有人愿意花大把的精力和金錢在建房這件事情上,只是為了把自己的家變成理想的樣子。下面推薦10款好看的農村建房圖紙,它的建房案例實拍或許可以說明這幾款小別墅也許就是你心目中家的樣子。
編號: DC0189

層數: 一層帶閣樓
結構形式: 磚混結構
主體造價: 16-20萬
開間: 14.04米
進深: 11.34米
占地面積: 144.36平方米
建筑面積: 210.69平方米
平面布局

一 層: 客廳、臥室(附衛生間)、2臥室、廚房、餐廳、衛生間
建房實拍案例

案例說明
此款戶型是很受歡迎的一款小別墅,各個功能區域相對寬敞,保證了充足的室內空間。雖是一層的小別墅,但是帶了一個閣樓,既可以隔熱又增加了室內空間。
案例外觀大氣時尚,配色經典,磚紅色的外墻配上白色的羅馬柱、花瓶柱以及窗套,渾然一體。
編號: DC0103

層數: 二層
結構形式: 磚混結構
主體造價: 18-24萬
開間: 12.04米
進深: 8.84米
占地面積: 103.4平方米
建筑面積: 206.79平方米
平面布局

一 層: 客廳、臥室、廚房、餐廳、雜物間、衛生間
二 層: 休息廳、小客廳(附陽臺)、臥室(附陽臺)、2臥室、衛生間
建房實拍案例

案例說明
從室內布局來看,室內布局空間利用率極高。各個功能區域寬敞明亮,區域分布很分明
建成案例配色明亮吸睛,一二層的配色相互映襯,黃色的墻磚讓人眼前一亮。此款案例很好的還原了效果圖,是一款實用又大氣的別墅戶型。
編號: DC0250

層數: 二層
結構形式: 磚混結構
主體造價: 20-25萬
開間: 11.34米
進深: 13.31米
占地面積: 136.40平方米
建筑面積: 254.44平方米
平面布局

建房實拍案例

案例說明
此戶型是最受農村朋友喜歡的戶型,從外觀來看簡約時尚,簡單易建造。
并且室內功能區域規整,案例建成后,戶主在兩側分別增加了車庫的建造。
此款案例體面又耐看。精致的外觀和時尚的配色,深受大眾的喜愛與關注,如果想建一款性價比高的別墅,此款別墅是不二之選。
編號: DC0355

層數: 二層
結構形式: 磚混結構
主體造價: 25-30萬
開間: 12米
進深: 11.6米
占地面積: 135.56平方米
建筑面積: 300.98平方米
平面布局

建房實拍案例

案例說明
雖然此款小別墅占地面積不大,但是各個空間都設計的比較大,舒適又通透。
建成案例采用了暖色的墻磚為基調,文化石浪漫大方,橙黃色的墻漆搭配特別協調,加上整個院子的裝飾和搭配,房子雖不大,但是卻給人浪漫而又貴氣的感覺。
編號: DC0324

層數: 二層
結構形式: 磚混結構
主體造價: 22-26萬
開間: 13.8米
進深: 8.4米
占地面積: 116.18平方米
建筑面積: 268.86平方米
平面布局

一 層: 客廳、臥室(附衛生間)、臥室、廚房、餐廳、衛生間
二 層: 起居室、臥室(附書房,衛生間,陽臺,露臺)、臥室(附陽臺)、2臥室、衛生間
建房實拍案例

案例說明
別墅用質感細膩的淺黃色墻面搭配藍色坡屋頂,一層采用質樸的文化石裝飾,增添自然美感,契合農村的秀美風光。
屋頂選用現在農村最受歡迎的坡屋頂設計,有利于排水隔熱,美觀又實用;多開窗的設計使得室內采光效果好,視野更佳,通風也更加順暢。
編號: DC0229

層數: 三層
結構形式: 磚混結構
主體造價: 24-28萬
開間: 11.7米
進深: 11.1米
占地面積: 125.93平方米
建筑面積: 303.96平方米
平面布局

一 層: 客廳(中空)、臥室、廚房、餐廳、衛生間、車庫
二 層: 小客廳、臥室(附陽臺)、2臥室、衛生間
三 層: 小客廳、臥室(附陽臺)、2臥室、衛生間、露臺
建房實拍案例

案例說明
此款戶型是建的比較多的一款自建別墅,主體設計大氣恢宏,精致有序的造型,錯落有致的線條,低調奢華的配色,細節之處顯真章。
案例整體精致又簡單,沉穩大氣的造型,和諧經典,暗紅色的墻磚搭配文化石白色的羅馬柱、精致的窗套,凸顯了線條的明朗。
編號: DC0361

層數: 三層
結構形式: 磚混結構
主體造價: 30-35萬
開間: 11米
進深: 12米
占地面積: 138.34平方米
建筑面積: 351.69平方米
平面布局

建房實拍案例

案例說明
此款戶型設計巧妙,外觀簡約大氣易建造,沒有任何累贅的元素。
米色的外墻,白色的線條,鮮明、柔和,給人雅致清新的感覺。房子是一個簡歐的風格,給人以平衡感和穩定感。
此款別墅戶型設計十分符合農村生活習慣,一層客廳寬敞大氣,二層作為休息區域,主要是書房和臥室區,提供了一個很安靜的休息環境。三層帶有健身房,并帶大露臺,健身完正好可以在露臺休閑賞景。
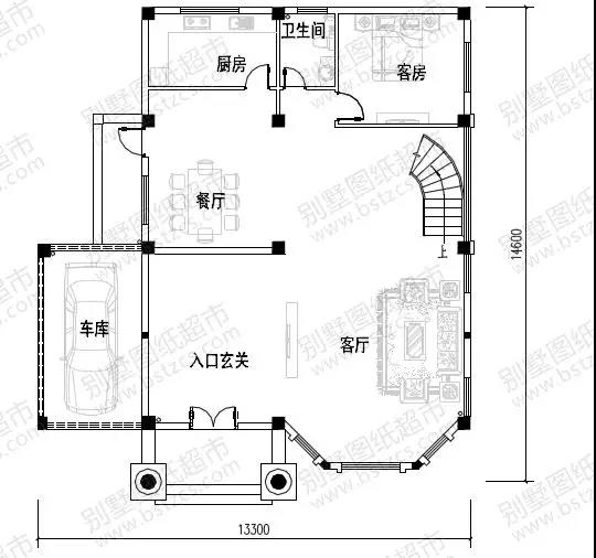
編號: DC0001

層數: 三層
結構形式: 框架結構
主體造價: 34-40萬
開間: 13.3米
進深: 14.6米
占地面積: 147.7平方米
建筑面積: 366.4平方米
平面布局

一 層: 入口玄關、客廳、餐廳、廚房、客房、衛生間、車庫
二 層: 臥室、臥室(附陽臺)、臥室(附書房,衛生間,陽臺)、衛生間
三 層: 活動廳(附露臺)、臥室、臥室(附露臺)、臥室(附書房,衛生間,陽臺)、衛生間
建房實拍案例

案例說明
該款別墅外觀簡潔大方,紅褐色瓷磚搭配小規格米黃色面磚,不僅耐臟實用,而且美觀大方。多窗體,多采光設計,360度闊景觀視野,與窗外景觀零距離,別墅的造型簡約大氣。
這一看就是大戶人家的別墅,歐式獨具魅力的房子搭配超美的園林,生活充滿了自在和悠閑。
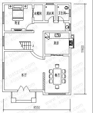
編號: DC0005

層數: 三層
結構形式: 磚混結構
主體造價: 20-25萬
開間: 8.55米
進深: 11.6米
占地面積: 101.99平方米
建筑面積: 274.63平方米
平面布局

一 層: 客廳、臥室(附衣帽間)、廚房、餐廳、洗衣間、衛生間
二 層: 客廳、臥室(附陽臺)、2臥室、書房、衛生間
三 層: 臥室(附陽臺)、3臥室、衛生間、露臺
建房實拍案例

案例說明
如果家里宅基地小,那么此款戶型十分值得推薦,小地基也可以建出大別墅說的就是此款圖紙。
浪漫精致的配色,經過考究的造型,建出來不僅顯得貴氣,還帶大露臺,落地窗,實在又實用!
編號: DC0277

層數: 三層
結構形式: 磚混結構
主體造價: 28-32萬
開間: 11米
進深: 11.6米
占地面積: 130.71平方米
建筑面積: 385.85平方米
平面布局

一 層: 客廳、臥室、廚房、餐廳、衛生間、車庫
二 層: 客廳、娛樂廳、臥室(附陽臺)、2臥室、書房、衛生間
三 層: 娛樂廳、臥室(附陽臺)、2臥室、衛生間、露臺
建房實拍案例

案例說明
建成后整體效果大氣非凡,流線清晰自然。整個房子自成一體,名門風范一覽無遺。
簡約的外觀,沒有對于的贅色,簡單的磚紅色和白色的搭配,形成最精致耐看的外觀形態。落地窗形狀獨具特色,有一種高貴典雅的宮廷風范。白色的窗套將房子的線條裝飾的很分明。
.jpg)
本文由別墅圖紙超市編輯發布,如需了解更多,可登錄網站主頁http://www.wxtmjd.cn/,或者撥打我們的免費電話400-8080-889在線咨詢。
>>>>推薦閱讀:12套歐式自建別墅,任意一棟都精致大氣,農村生活一樣舒適有品味!
>>>>推薦閱讀:40款私人定制案例,第2款四合院超貴氣,第23款人人想建!
>>>>推薦閱讀:6款簡潔易建造的自建別墅,農村人都愿意建的戶型!











