15萬建個一層別墅,弄個庭院立馬高大上,5套戶型供你選擇!
說到自建別墅,大多數人似乎都喜歡二層建筑,覺得夠大夠霸氣,但是小編卻覺得其實一層別墅也很好,相較于二層更經濟,而且只要戶型設計的好,好好裝修一下弄個庭院啥的,效果不比城里的別墅差。再加上一層的設計也可以多設計臥室,和兩層差別不大,今天小編帶來的這5款一層別墅,15萬左右就能建,戶型值得參考。
戶型一:編號DC0104

這款戶型一層半形式,既擴大化了別墅一層鮮少的功能空間,又能省錢經濟實用。開間16米,進深9.3米,占地面積145.38平方米,建筑面積267.99平方米,主體造價10-15萬。
戶型圖:

一 層:堂屋(兼餐廳)、客廳、4臥室、廚房、衛生間
閣 樓:儲藏間
戶型二:編號DC0122

這款一層農村別墅外觀時尚現代,寬敞通透的落地窗,采光通風都很舒適。開間11.1米,進深9米,占地面積91.94平方米,建筑面積104.13平方米,主體造價10-13萬。
戶型圖:

一 層:客廳、3臥室、廚房、餐廳、衛生間
戶型三:編號DC0158

別墅外觀精致大氣,顏色以白黃色和藍色為主,白色作為點綴,還有明黃色的裝飾物,窗戶較大,有充足的陽光照射。開間15.5米,進深9米,占地面積133.2平方米,建筑面積178.14平方米,主體造價9-12萬。
戶型圖:

一 層:客廳、臥室(附衛生間)、3臥室、廚房(附儲藏室)、衛生間
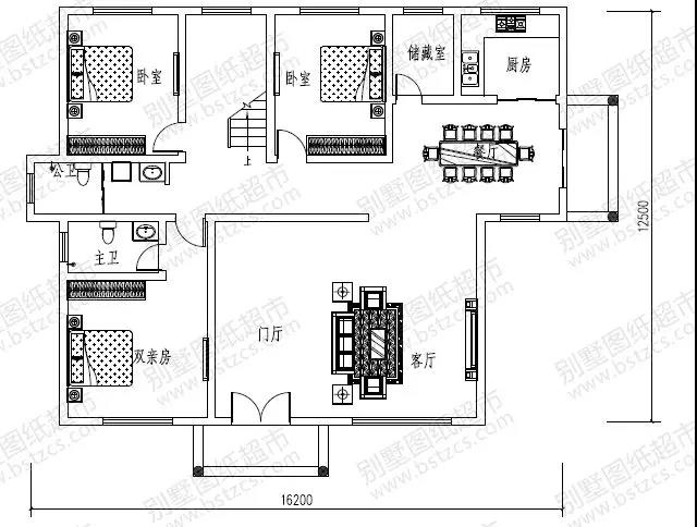
戶型四:編號DC0220

本戶型以黃白色和藍色為主,黃色的墻體加上藍色的屋頂,加上部分白色,還有一些明黃色的裝飾物點綴在窗戶上,柱子上,顯得精神大氣。開間16.2米,進深12.5米,占地面積183.25平方米,建筑面積236.72平方米,主體造價15-18萬。
戶型圖:

一 層:客廳、臥室(附衛生間)、2臥室、廚房、餐廳、儲藏室、衛生間
夾 層:儲藏間
戶型五:編號DC0249

別墅外觀時尚大氣,紅色的外墻配上白色的線條裝飾,非常的美觀。開間13.2米,進深12米,占地面積153.38平方米,建筑面積187.85平方米,主體造價14-18萬。
戶型圖:

一 層:客廳、3臥室、廚房、餐廳、衛生間、車庫
閣 樓:儲藏間
.jpg)
本文由別墅圖紙超市編輯發布,如需了解更多,可登錄網站主頁http://www.wxtmjd.cn/,或者撥打我們的免費電話400-8080-889在線咨詢。
>>>>推薦閱讀:案例|經典一層帶閣樓農村別墅,外墻顏色決定造型風格!
>>>>推薦閱讀:【11*10米】農村二層經濟小別墅,好看實用,為農村生活量身定制!
>>>>推薦閱讀:【分享】網友28萬建一層農村別墅,帶架空層,人人看了都說值!











