6套漂亮農村別墅戶型,進深10米,28萬左右就能建好
面寬一樣,進深不同能夠建出成千上萬種不同類型的農村別墅;同樣的面寬不同,但是進深一樣,也能建出各種不同風格的農村別墅。下面這6個農村別墅戶型,進深都為10米,各有特點,一起來看看。
01
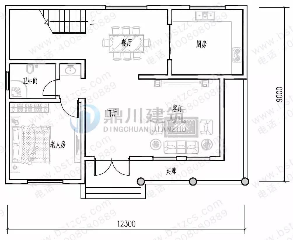
三層帶露臺小戶型別墅

編號: DC0365
結構形式: 磚混結構
開間: 12.3米 進深: 9米
占地面積: 115.87平方米
建筑面積: 300.19平方米
主體造價: 24-28萬
首層戶型:

二層戶型:

三層戶型:

一 層:走廊、門廳、客廳、臥室、廚房、餐廳、衛生間
二 層:起居室、娛樂室、臥室(附露臺)、2臥室、衛生間
三 層:健身房、臥室、衛生間、露臺
02
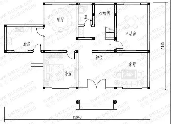
二層農村自建房


編號: DC0017
結構形式: 磚混結構
開間: 15.84米 進深: 9.44米
占地面積: 134.8平方米
建筑面積: 225.6平方米
主體造價: 18-22萬
首層戶型:

圖紙預覽:


一 層:客廳、臥室、活動房(或臥室)、廚房、餐廳、雜物間、衛生間
二 層:4臥室、衛生間、露臺
03
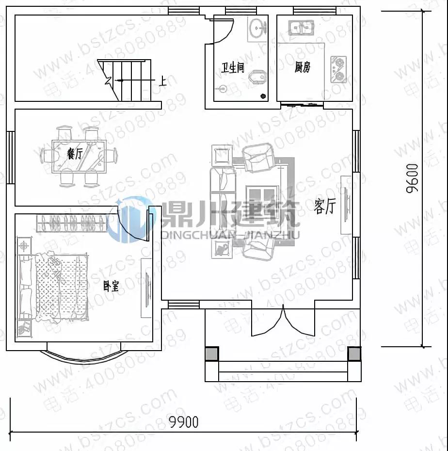
農村三層帶露臺小別墅


編號: DC0312
結構形式: 磚混結構
開間: 9.9米 進深: 9.6米
占地面積: 92.94平方米
建筑面積: 274.1平方米
主體造價: 22-26萬
首層戶型:

圖紙預覽:


一 層:客廳、臥室、廚房、餐廳、衛生間
二 層:休息區、臥室(附書房,衣帽間,陽臺)、臥室、儲存間、衛生間
三 層:臥室(附書房,衣帽間,陽臺)、臥室(附露臺)、衛生間
04
二層帶車庫框架結構別墅


編號: DC0254
結構形式: 框架結構
開間: 13.4米 進深: 9.2米
占地面積: 109.24平方米
建筑面積: 213.56平方米
主體造價: 26-32萬
首層戶型:

圖紙預覽:


一 層:客廳、臥室、廚房(兼餐廳)、衛生間、車庫
二 層:客廳(附陽臺)、臥室(附陽臺)、2臥室、衛生間
05
三層歐式小別墅設計

編號: DC0276
結構形式: 框架結構
開間: 12米 進深: 9.3米
占地面積: 97.58平方米
建筑面積: 275.41平方米
主體造價: 25-30萬
首層戶型:

圖紙預覽:


一 層:堂屋、客廳、臥室、廚房、餐廳、儲藏室、衛生間
二 層:起居室、娛樂室、臥室(附陽臺)、臥室、衛生間、露臺
三 層:3臥室、衛生間、露臺
06
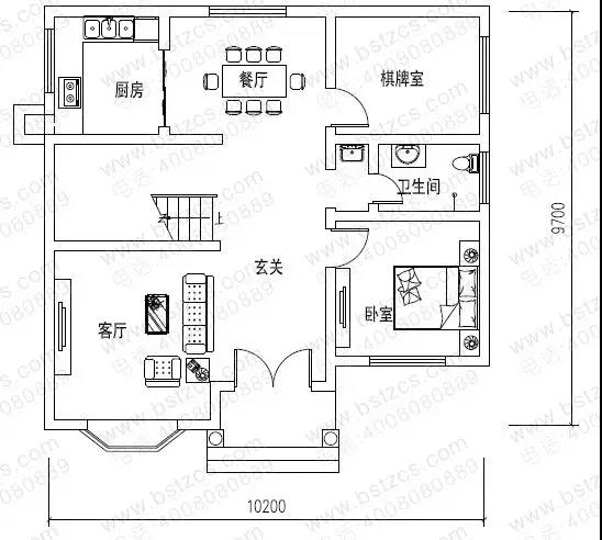
二層帶陽臺小別墅設計

編號: DC0235
結構形式: 磚混結構
開間: 10.2米 進深: 9.7米
占地面積: 96.6平方米
建筑面積: 193.2平方米
主體造價: 18-22萬
首層戶型:

圖紙預覽:


一 層:玄關、客廳、臥室、棋牌室、廚房、餐廳、衛生間
二 層:小客廳、臥室(附陽臺)、3臥室、衛生間
6個戶型,進深都在10米左右,二層三層都有,獨棟雙拼也有,可謂是戶型較齊全了,就不信沒有一款適合你的。
.jpg)
本文由別墅圖紙超市編輯發布,如需了解更多,可登錄網站主頁http://www.wxtmjd.cn/,或者撥打我們的免費電話400-8080-889在線咨詢。
>>>>推薦閱讀:賣的最火的農村二層別墅之一,時尚簡歐造型低造價!
>>>>推薦閱讀:農村建房別著急,這6款農村自建別墅設計,絕對驚艷你!
>>>>推薦閱讀:28款高顏值農村別墅,氣派時尚,農村房子這樣建才對得起宅基地!











