6款帶走廊的自建小別墅,實用還別致,第2款造價才18萬!
以前老式的農村房子出門會有一條過道,第一是為了防水防塵,第二是在進入室內的時候有個過渡。現如今房子建的比以前的越來越好看了,但是很多人建房還是喜歡在外面加一個走廊,今天小編就介紹幾款帶走廊的別墅給大家吧!
編號: DC0233
層數: 二層
結構形式: 磚混結構
主體造價: 28-32萬
開間: 11.1米
進深: 12.7米
占地面積: 133.49平方米
建筑面積: 259.6平方米


一 層: 走廊、玄關、客廳、臥室、廚房、餐廳、儲藏室、衛生間、車庫
二 層: 客廳、臥室(附衛生間,陽臺)、3臥室、書房、衛生間
閣 樓: 儲藏間
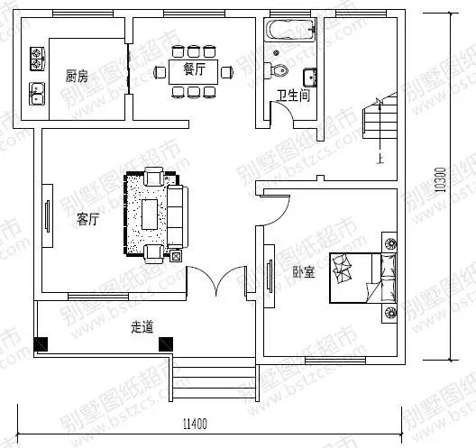
編號: DC0207
層數: 二層
結構形式: 磚混結構
主體造價: 18-22萬
開間: 11.4米
進深: 10.3米
占地面積: 105.95平方米
建筑面積: 210平方米


一 層: 走廊、客廳、臥室、廚房、餐廳、衛生間
二 層: 客廳(附陽臺)、臥室(附陽臺)、臥室(附書房)、臥室、衛生間
編號: DC0354
層數: 二層
結構形式: 磚混結構
主體造價: 32-36萬
開間: 13.8米
進深: 12.3米
占地面積: 176.06平方米
建筑面積: 362.03平方米



一 層: 走廊、門廳、客廳、臥室(附衛生間)、臥室(附衣帽間)、廚房、餐廳、衛生間
二 層: 起居室(附陽臺)、臥室(附衣帽間,書房,衛生間)、臥室(附2露臺)、臥室、衛生間
編號: DC0298
層數: 二層
結構形式: 框架結構
主體造價: 32-36萬
開間: 15.6米
進深: 13.2米
占地面積: 194.53平方米
建筑面積: 379.14平方米


一 層: 客廳、棋牌室、臥室(附衣帽間,衛生間)、臥室、廚房、餐廳、洗衣房、衛生間
二 層: 起居室、臥室(附書房,衣帽間,衛生間,陽臺)、2臥室、衛生間、露臺
閣 樓: 儲藏間
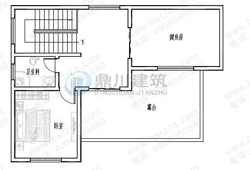
編號: DC0365
層數: 三層
結構形式: 磚混結構
主體造價: 24-28萬
開間: 12.3米
進深: 9米
占地面積: 115.87平方米
建筑面積: 300.19平方米




一 層: 走廊、門廳、客廳、臥室、廚房、餐廳、衛生間
二 層: 起居室、娛樂室、臥室(附露臺)、2臥室、衛生間
三 層: 健身房、臥室、衛生間、露臺
編號: DC0353
層數: 三層
結構形式: 框架結構
主體造價: 40-45萬
開間: 14米
進深: 13.8米
占地面積: 196.66平方米
建筑面積: 434.81平方米




一 層: 走廊、堂屋、客廳(中空)、會客室(附內陽臺)、臥室(附衛生間)、廚房、餐廳、衛生間
二 層: 小客廳(附陽臺)、臥室(附衛生間,露臺)、臥室(附書房)、臥室、衛生間
三 層: 活動室、臥室(附衛生間)、臥室(附書房)、衛生間、陽臺、露臺
.jpg)
本文由別墅圖紙超市編輯發布,如需了解更多,可登錄網站主頁http://www.wxtmjd.cn/,或者撥打我們的免費電話400-8080-889在線咨詢。
>>>>推薦閱讀:10款戶型嚴謹私密性強的農村別墅,布局必須給滿分!
>>>>推薦閱讀:10款占地100平左右農村別墅,小宅地基建大氣別墅就這么簡單!
>>>>推薦閱讀:12款占地不足百平的農村別墅,經濟實用,最高造價不過26萬!











