網友建房自述:父輩三代共建聯排別墅,血脈親情惹人羨!
家鄉老宅對于農村出生的人來說意義特別重大。老宅原是我父輩三兄弟合建的,六開間,東西共 30 米,南北約 8 米余,每家 2 間。
老宅上次翻建是我出生的時候,過去都 30 年了,破舊的很,和村里相繼翻建的房子反差很大。所以前年開始,父輩三代和全家好幾十口人一起就張羅著要重建老宅。
先上最后成果,慢慢更新過程。
大家庭的老宅翻修,最主要的就是各家需求如何保證?但是各家財力不同訴求不同,有很多矛盾,大致有如下幾點。
大伯家只有女兒,該房子作為老人回家歇腳使用,女兒女婿回家臨時住住,要求臥室 4 間,餐廳客廳經濟實用為主。
二伯家常年農村生活,財力有限,希望依然能大灶燒飯,打井用水,面積維持原來的大小即可。
我家的需求主要來自于我,第一個是為父母打造一個舒適的居住環境,能有別墅的感覺,第二個是作為我的度假小屋,以后可以多帶兒子回老家,陪陪父母。第三個是為以后丈母娘過來合住留有空間。
大家共同的需求還有一個能辦事的場地,主體意思就是得要有個能容納十幾桌人一起吃飯的地方,但是每家每戶又都要獨立。
還有,我們這次翻建由于把整個場地都重新整理,拆了對面五伯家留在老宅邊的一個小房子,他希望能給他蓋一個小賣部大小的房子,便于他以后回老家養老時補貼生活。
商量清楚各家需求后,我大致估計了下面積,大伯家原本占地 85 平左右,建成后基本是 2 層小樓的規模,二伯家占地 85 平,只打算翻建不增加面積,我家占地 85 平,面積需求達到了四層以上。
弄清楚了各家需求,然后就是設計的準備工作了。我大概一共做了有 4~5 個方案,最后這個得到了大家伙的一致認同,也符合農村風水。
下面給出具體設計方案,首先是效果圖:
可以看到是個 3 層小樓,5 開間布局,場地西南角設小屋一間,圍墻全包圍,正前方為綠籬隔斷。
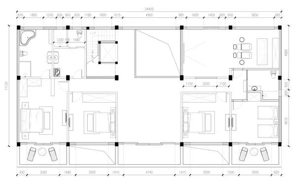
給出第一層的布局圖:
5 開間的布局,采用了 4.5+4.5+6+4.5+4.5 的布置法,主要就是考慮面積的等分問題,而且三家進門的大廳是貫通的,各家之間采用移門隔斷作為分界,平時隔斷拉上,各回各家;用時把移門隔斷打開就是完整的一個大廳。我家由于放棄了底樓的朝南房間,因此我加設了別墅電梯以解決以后我父母年紀大了爬樓的問題。
好了,開始說二樓。具體可以看下下面這個圖的示意。
大家會發現有幾個和農村房屋不太一樣的地方。一是房頂挑檐很大,二是主樓東西兩側有類似封閉陽臺的懸挑結構,這是結合了夏至和冬至的太陽高度,保證最熱的時候太陽不曬墻,最冷的時候屋里有陽光。東西兩側的懸挑結構其實是一堵墻,作用是擋住西曬的太陽和東飄的春雨。
上平面戶型圖。
接下來上三樓的平面圖。
三樓簡單多了,南側東西共四個房間為臥室,中間 6 米開間的部分南向是個高 6 米的大玻璃窗,設想為陽光房和運動區域。
原本設計部分就可以在這里結束了,但老婆提出來說她希望有個閣樓,帶天窗的那種。我考慮了一下,通過對中間 6 米部分屋頂的變形處理,我在屋頂的北側拉出了一個露臺出來。具體布置可以看下面的圖。
下面是屋頂的效果圖,忽略我北側未畫完整的窗戶。
主體部分介紹結束。
老房翻建開始于去年的 5 月 26 日,這是基礎挖開后開始擺放基礎鋼筋。可以看到基礎還是做得比較寬的,主要是因為我家這邊是新成陸地區,土質不太好,屬于軟土,按上海這邊的說法叫老八噸,意思是一平方的土上能吃 8 噸的重量。
下面這張是第一層框架搭起來的照片。
農村較常使用的建筑方式,一般是磚混一起做的,即使結構配筋的時候是安裝框架來計算的,施工的時候也會把磚墻先砌起來。
下面這個圖是二樓起來后,支架拆掉的樣子。
這個圖是三樓起來后的立面。
一到三樓過程都比較順利,除了向鋼筋工解釋 2 米的挑梁負彎矩區鋼筋放置的一些注意事項,返工耽擱了些時間外,都還算順利。
下圖是屋頂施工的照片。
下圖是屋頂起來后,整個的立面圖:
下圖是隔斷墻砌起來以后的效果。
這是村頭小路看過去的,和旁邊的房子比起來,不算扎眼,但也有所不同。
下圖是批墻以后的,基本上樣子已經差不多了。
刷漆基本完成的樣子。
準備開始做小花園。

除了主樓外,場地還有一間東向小屋,大約 6 米 *8 米的大小,平頂造型,共分 3 個部分,約 30 平方的大灶廚房,3 平方的公共廁所和開門在圍墻外的 15 平的小賣部。整個場地由 2 米多高的圍墻包圍,正前方是綠籬隔斷。
下面上東大門進門的視角。
這個是原來大伯家地基位置,是暗渠,現在改成了小花園,放一些健身器材。
走近一些,放個近照。
拍的另一個視角的。
草皮還沒發芽,光禿禿的難看了點,反方向是菜地,現在種了些南瓜。
最后,總結一些對其他建房者的建議
1、建房之前,一定要先了解下當地建材的價格和人工價格,并對一些大材料要有個初步意向,除了常規的砂石水泥黃沙磚瓦,一些外墻石材或是瓦當要先看好,據此來展開房屋的設計工作。
2、場地排水要查看清楚,必要時,甚至應該幫領居家的排水管道都要清理修整一下,既增進了鄰里關系,也避免了別家院子的排水沖進了自家院子。
3、自己家土地的土質一定要了解,能省下很多基礎錢。
4、找一個好的施工隊,不要去他領你去的人家問,不要去他剛做完或是正在做的人家問。
5、對施工隊伍不要太計較,有些東西施工單位領會錯了做錯要返工的話,能自己承擔的就承擔掉,否則下次他再做錯,他會憋住不說,等到木已成舟就無話可說了。到時,不爽的還是自己。
6、合理的工種配合很重要,盡量不要讓幾個工種同時做,容易互相影響。
7、窗子盡量最后裝,別信施工隊說先上窗子后補洞,你會發現你的窗子還沒用就跟建筑垃圾一樣。
8、一切可能碰到水的地方都要做防水。
9、別相信施工隊說的我懂了懂了的話,復雜的東西讓他先做一小段看個樣再說,否則…………
10、院門與路最好要保持一段距離,留有觀察道路左右兩側有沒有來車的空間。
11、圍墻一定要有,不一定高,不一定是實墻,但是有個院子,會更讓家更有安全感。
12、一定要有綠植,可以的話,四季搭配一下。
13、關于電氣,唉,我痛心地簡直說不出話來。
14、最后也是最重要的,認真聽取房屋每個使用者的要求和建議,仔細溝通,房子不是一個人住的,是一家人住的。
.jpg)
本文由別墅圖紙超市編輯發布,如需了解更多,可登錄網站主頁http://www.wxtmjd.cn/,或者撥打我們的免費電話400-8080-889在線咨詢。
>>>>推薦閱讀:建房自述:湖南小伙花20萬自建一套有花有樹有院子的歐美小別墅!
>>>>推薦閱讀:案例|羅馬風格三層農村別墅,建成后簡直和效果圖一模一樣!
>>>>推薦閱讀:二層半小別墅,75萬建好還帶室內外裝修,值得一看!











