農村建房,房間的開間進深合理尺寸是多少?附13個住宅功能區尺寸圖
農村自建房首先考慮的就是房間戶型的設計,每套房子均由各種不同功能的房間組成的,這些不同功能的房間組成了整個房子的結構。根據功能的不同戶型大致有主臥、次臥、客廳、餐廳、玄關、廚房、衛生間、陽臺等,每種房間的開間進深都有個合理尺寸,以舒適度為基本要求。下面小編就為大家帶來13個住宅功能區的尺寸圖。
一、主臥室
1、主臥室的最低開間中到中尺寸是3.6m(凈3.3m) ,最低進深中到中尺寸是4.8m(凈4.5m),這是保證家具擺放和人的活動最低適用要求的尺寸(圖1)

2、主臥室的“舒適”開間中到中尺寸是3.9m(凈3.6m) ,進深中到中尺寸是5.1m(凈4.8m),是家具擺放和人的活動是比較方便舒適的(圖2)

3、主臥室的“高舒適”開間中到中尺寸是4.2m(凈3.9m) ,進深中到中尺寸是7.5m(凈 7.2m),這時家具擺放和人的活動會更加方便舒適;不僅如此,到了這一級,主臥室就應該配有主衛生間和進入式衣帽間( 圖3),或不設進入式衣帽間,把衛生間做大,使洗浴更加舒適(圖4)


二、次臥室
次臥最低“適用”開間中到中尺寸是3.3m(凈3.0m) ,進深中到中尺寸是4.5m(凈4.2m),如圖5。這里講的是最低“適用”要求,因為小于這個尺寸就會給家具布置和人的活動帶來不便,如果小于這個尺寸,應該設計為書房、兒童房等。
建筑面積比較大的戶型,次臥可以提高到主臥的標準。

三、客房
客房尺寸標準最低應與次臥相同(圖5)。當然,如果戶型更大,它也可按最低“適用”主臥(圖1) 甚至“舒適”主臥(圖2) 設置
四、兒童房
兒童房設計成開間3.0m、進深 4.2m、面積12.60㎡,可滿足家具擺放和人的活動要求,即“適用”要求(具體可參見圖6)

當然,如果戶型面積足夠大,將兒童房按圖5 次臥尺寸或主臥尺寸設計。同時,兒童是要長大的,按次臥或“適用”主臥設計兒童房,兒童長大后不必更換房間。
另外,設置兒童房還可使住宅套型設計更方便,即將受戶面寬和進深限制不能將其設計為主臥、次臥、客房的空間設計為兒童房。
五、書房
三室以上的戶型宜設置書房。因無需擺放大床( 2.2m x 2.0m)和床頭柜等家具, 所以其尺寸要求也不像臥室那樣嚴格, 具體參見圖 7

它也像兒童房一樣可使住宅套型設計更方便。當然,圖7 基本上是僅滿足書房最低使用功能的“適用”要求,如果建筑面積足夠大,也可按次臥圖5、主臥圖1、圖2 的尺寸設計書房,使書房達到舒適的要求。這樣還帶來另一個好處,即書房可隨時據需要改為臥室,增加了房間使用的靈活性。
六、客廳
1、客廳的最低“適用”尺寸宜為開間3.9m,進深4.5m, 建筑面積17.55㎡,如圖8 所示。請注意,這種尺寸的客廳, 只能滿足29 英寸或32 英寸電視的觀看距離要求,尺寸再大就不行了,所以它僅是“適用”尺寸。

2、客廳的“舒適”尺寸要求, 大致為開間4.5m, 進深5.1m、建筑面積22.95㎡,這種尺寸大致能滿足42英寸以下(不含42 英寸) 電視的觀看距離要求
3、客廳的“高舒適”尺寸要求,大致為開間5.1m,進深6.6m,建筑面積33.66㎡,如圖9 所示。這種尺寸無論在開間方向或進深方向擺放電視,均可滿足42 英寸及以上電視(背投、等離子、液晶等平板電視)的觀看距離要求,所以,它是“高舒適”的客廳尺寸

七、餐廳
餐廳是住戶家人或家人與親友進餐的房間。它的“適用”尺寸是開間3.3m、進深 4.5m、建筑面積14.85㎡,如圖10a所示。由圖可見,擺放一八人餐桌和八把餐椅,這是“適用”尺寸了,也就是說,餐廳的開間尺寸最小是3.3m
餐廳的“舒適”或“高舒適”開間進深尺寸可按 3.6mx 4.8m 或3.9m x 5.1m設計,詳見圖10b。“舒適”型可改放十人餐桌;也可仍放八人餐桌,使空間寬暢些;“高舒適”型不僅可改放十人餐桌,還可將冰箱甚至吧臺置于其中,所以就是“高舒適”了

八、玄關
80㎡以上(不含80㎡) 套型宜設置門斗,它是進入戶內的過渡空間,裝修時做上一個造型優美的大門套,稱之為玄關。它的開間尺寸宜為1. 5m以上,具體如圖 11 所示。門廳是戶建筑面積很大,比如160㎡以上時,方予設置的空間

圖12 所示套型建筑面積達167㎡,四室三廳二衛, 可以說是一個“高舒適”的戶型。這里要說的是它不是二廳而是三廳,比多數戶型多了一個面積達18㎡的門廳,是否浪費呢? 從圖中可見,門廳中集中了七個門之多,因此這個門廳不僅充分起到了過渡、緩沖作用,而且使其它每個房間均很規整,很舒適, 因此并不算浪費

九、廚房
廚房是住宅非常重要的房間。隨著戶型面積的增大,它的尺寸也隨之加大。廚房的“適用”、“舒適”、“高舒適”尺寸大致如圖13a、 b、 c所示。“高舒適“型廚房”對于時尚家庭,若用作西餐廚房,可兼作家人小餐廳

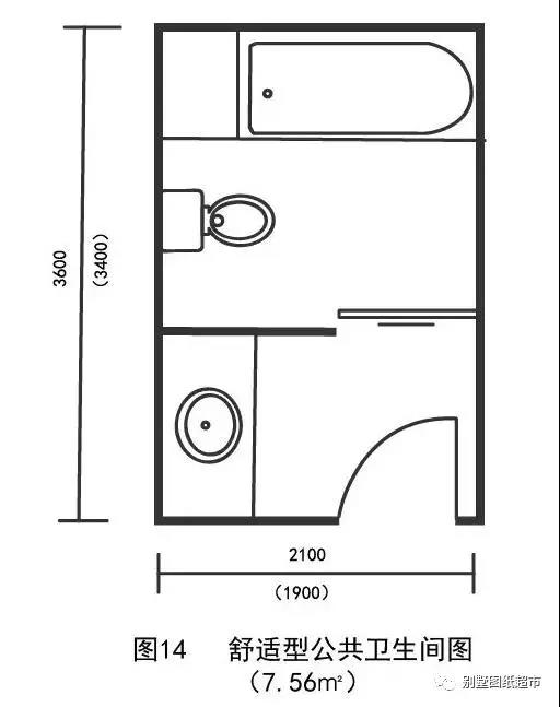
十、衛生間
衛生間分公共衛生間和主臥衛生間。主臥衛生間以接近方形為佳( 便于潔具布置) ,尺寸可參照圖3和圖4 或適當加大設置,這個尺寸擺放矩形或大三角形噴水按摩浴缸都夠。
公共衛生間以矩形為佳,因這樣既可少占面寬又可將洗漱與浴廁隔開,使之可供一人洗漱一人浴廁同時使用,增加它的使用功能,使戶型更加“適用”或“舒適”,具體如圖14 所示。該圖尺寸基本上可達到“舒適”標準,若要改成“適用”或“高舒適”標準,可將其開間、進深適當縮小或加大。

十一、儲藏室
130㎡及以上的套型應設置儲藏間,以便住戶存放雜物之用。它的“適用”尺寸大致如圖 15 。

十二、樓梯間
樓梯間的“適用”開間尺寸是2.6m,進深尺寸是5.8m,具體如圖 16 所示。這個尺寸基本能滿足人、家俱搬運、管道井設置等各種要求

梯段2.2m,即八個踏步0.275m x 8= 2.2m,每層上18步,若層高為2.8m, 每個踏步高0.155m, 這是很“適用”甚至較為“舒適”的尺寸。若要達到“高舒適”標準,可將開間增為2.7m,進深增加為6.0m,梯段長增為2.4m(踏步寬由0.275m增為0.3m)
十三、陽臺
陽臺若作健身房之用,其進深應達到1.8m以上,開間隨主臥室( 4.5m) ;若作花房和洗衣房,其進深宜為1.5m至1.8m,開間隨次臥室( 3.3m或3.6m)
若有設在廚房北面的北陽臺,也稱生活陽臺,其進深以1.3m 至 1.5m 為宜,開間隨廚房( 2.1m、2.4m、2.7m、3.0m)
.jpg)
本文由別墅圖紙超市編輯發布,如需了解更多,可登錄網站主頁http://www.wxtmjd.cn/,或者撥打我們的免費電話400-8080-889在線咨詢。
>>>>推薦閱讀:農村建房不得不考慮的問題:如何確定基礎埋深?
>>>>推薦閱讀:【干貨收藏】2018年農村建房子需要的手續和證件
>>>>推薦閱讀:農村建房的注意了!建房安拆模板這些問題不注意,房子可能變危房!











