13款大氣實用易建造的農村自建別墅戶型,有你喜歡的嗎?
很多人回老家都有這樣一個感受,農村真的是變樣了!別的不多說,就說說一眼就能看到的房子,真是和以往大為不同。以前我們蓋房子,要求很低,可以遮風避雨就可以了,現在不一樣了,大家都追求有特點,因此各式各樣的別墅拔地而起。下面的13套農村自建別墅圖紙,都能讓我們在保證經濟實用的同時,也非常方便農村的施工。
一、三層帶車庫新農村別墅
.jpg)
.jpg)
編號: DC0066
結構形式: 磚混結構
開間: 11.7米 進深: 11.4米
占地面積: 138.98平方米
建筑面積: 376.37平方米
主體造價: 26-32萬
首層別墅:
.jpg)
圖紙預覽:
.jpg)
一 層:客廳、臥室(附衛生間)、臥室、廚房、餐廳、衛生間、車庫
二 層:客廳、臥室(附陽臺)、臥室(附衛生間)、3臥室、衛生間
三 層:客廳、臥室(附衛生間)、2臥室、衛生間、露臺
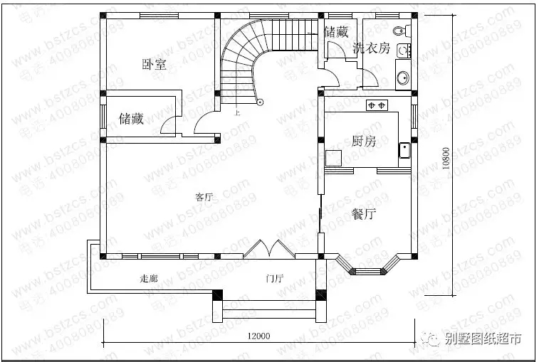
二、二層帶閣樓別墅設計
.jpg)
編號: DC0079
結構形式: 磚混結構
開間: 12米 進深: 10.8米
占地面積:126.43平方米
建筑面積:312.77平方米
主體造價: 24-28萬
首層戶型:
.jpg)
圖紙預覽:
.jpg)
一 層:走廊、客廳、臥室(附儲藏間)、廚房、 餐廳、儲藏間、衛生間
二 層:主臥(附書房,衛生間)、臥室(附陽臺 )、臥室、走入式衣柜、衛生間
閣 樓:儲藏間
三、農村二層自建別墅
.jpg)
編號: DC0010
結構形式: 磚混結構
開間: 12.4米 進深: 11.8米
占地面積: 141.09平方米
建筑面積: 338平方米
主體造價: 26-32萬
首層戶型:
.jpg)
圖紙預覽:
.jpg)
一 層:玄關、客廳、臥室(附衛生間)、棋牌室(或臥室)、廚房、餐廳、衛生間
二 層:客廳、臥室(附衛生間)、3臥室、書房(附陽臺)、衛生間
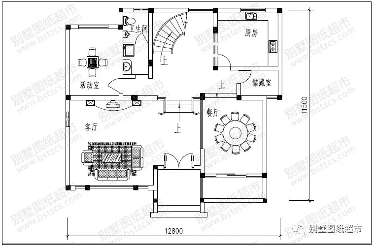
四、三層新農村自建別墅
.jpg)
編號: DC0082
結構形式: 磚混結構
開間: 12.8米 進深: 11.5米
占地面積: 140平方米
建筑面積: 520平方米
主體造價: 35-40萬
首層戶型:
.jpg)
圖紙預覽:
.jpg)
一 層:客廳、活動室、廚房、餐廳、儲藏室、衛生間
二 層:臥室(附書房,衛生間)、臥室(附書房,衛生間)、臥室(附露臺)、衛生間
三 層:臥室(附衣櫥,衛生間)、臥室(附陽臺)、臥室、書房、衛生間
五、三層帶露臺車庫自建別墅
.jpg)
.jpg)
編號: DC0086
結構形式: 框架結構
開間: 11.5米 進深: 12.5米
占地面積: 122.7平方米
建筑面積: 317.1平方米
主體造價: 26-32萬
首層戶型:
.jpg)
圖紙預覽:
.jpg)
一 層:玄關、客廳、臥室、廚房、餐廳、衛生間、室內景觀、車庫
二 層:臥室(附書房)、臥室(附衛生間)、臥室、娛樂室(附陽臺)、衛生間
三 層:客廳、主臥(附書房,衛生間,陽臺)、露臺
六、二層帶露臺別墅設計
.jpg)
編號: DC0154
結構形式: 磚混結構
開間: 12米 進深: 11.7米
占地面積: 115.33平方米
建筑面積: 332.7平方米
主體造價: 26-30萬
首層戶型:
.jpg)
圖紙預覽:
.jpg)
一 層:門廳、客廳、臥室(附衛生間)、廚房、餐廳、衛生間
二 層:起居室、臥室(附衛生間)、臥室(附陽臺)、書房(附陽臺)、衛生間、露臺
七、三層復式別墅設計
.jpg)
.jpg)
編號: DC0092
結構形式: 磚混結構
開間: 12.4米 進深: 11.4米
占地面積: 143.84平方米
建筑面積: 375.11平方米
主體造價: 28-34萬
首層戶型:
.jpg)
圖紙預覽:
.jpg)
一 層:客廳(中空)、臥室、廚房、餐廳、衛生間、車庫
二 層:客廳、臥室(附衛生間)、2臥室、書房、衛生間
三 層:客廳、臥室(附衛生間)、臥室、衛生間、陽臺、露臺
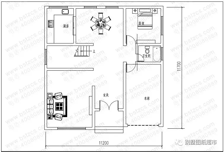
八、新農村三層房屋帶車庫
.jpg)
編號: DC0123
結構形式: 磚混結構
開間: 11.2米 進深: 11.7米
占地面積: 125.7平方米
建筑面積: 305.12平方米
主體造價: 20-25萬
首層戶型:
.jpg)
圖紙預覽:
.jpg)
一 層:客廳(中空)、臥室、廚房、餐廳、衛生間、車庫
二 層:客廳、臥室(附陽臺)、2臥室、書房、衛生間
三 層:臥室(附書房)、2臥室、衛生間、露臺
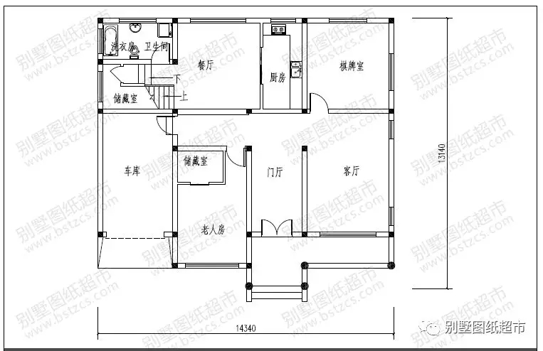
九、帶車庫及閣樓二層別墅設計
.jpg)
.jpg)
編號: DC0156
結構形式: 磚混結構
開間: 14.34米 進深: 13.14米
占地面積: 171.68平方米
建筑面積: 330平方米
主體造價: 24-28萬
首層戶型:
.jpg)
圖紙預覽:
.jpg)
一 層:門廳、客廳、老人房(附儲藏室)、棋牌室、廚房、餐廳、儲藏室、衛生間、車庫
二 層:起居室、臥室(附衛生間,更衣室)、3臥室、書房、儲藏室、衛生間
閣 樓:儲藏間
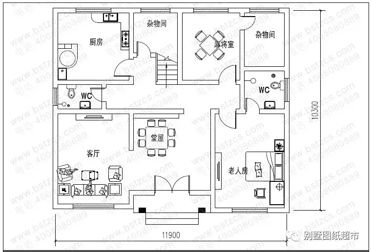
十、三層帶露臺別墅設計
.jpg)
.jpg)
編號: DC0161
結構形式: 磚混結構
開間: 11.9米 進深: 10.3米
占地面積: 120.8平方米
建筑面積: 290.99平方米
主體造價: 20-25萬
首層戶型:
.jpg)
圖紙預覽:

一 層:堂屋、客廳、老人房(附衛生間)、麻將室(附雜物間)、雜物間、廚房(兼餐廳)、衛生間
二 層:小客廳、主臥(附衛生間,陽臺)、臥室(附陽臺)、臥室、衛生間
三 層:臥室(附衛生間)、臥室(附陽臺)、臥室、衛生間、露臺
十一、新農村二層實用別墅設計

編號: DC0186
結構形式: 磚混結構
開間: 13米 進深: 10.6米
占地面積: 137.9平方米
建筑面積: 272.7平方米
主體造價: 23-28萬
首層戶型:

圖紙預覽:

一 層:堂屋、客廳、主臥(附衛生間)、臥室、廚房、餐廳、儲藏室、衛生間
二 層:客廳(附陽臺)、主臥(附衛生間)、3臥室、衛生間
閣 樓:儲藏間
十二、新農村三層小別墅設計

.jpg)
編號: DC0178
結構形式: 磚混結構
開間: 9米 進深: 11.6米
占地面積: 100.6平方米
建筑面積: 209.93平方米
主體造價: 24-28萬
首層戶型:
.jpg)
圖紙預覽:
.jpg)
一 層:客廳、臥室、廚房、餐廳、雜物間、衛生間
二 層:臥室(附陽臺,衣帽間,衛生間)、2臥室、衛生間
三 層:臥室(附衛生間,陽臺)
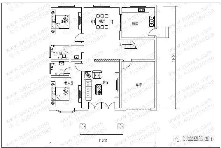
十三、農村三層自建別墅
.jpg)
編號: DC0177
結構形式: 框架結構
開間: 12.2米 進深: 13.5米
占地面積: 146.12平方米
建筑面積: 405.58平方米
主體造價: 34-40萬
首層戶型:
.jpg)
圖紙預覽:
.jpg)
一 層:客廳、臥室(附衛生間)、臥室、棋牌室、廚房、餐廳(附景觀陽臺)、衛生間;
二 層:起居室(附陽臺)、茶廳(附陽臺)、臥室(附陽臺)、臥室(附衛生間)、2臥室、書房、衛生間;
三 層:健身房(附露臺)、臥室(附衛生間,露臺)、2臥室、書房、衛生間
現在城里人也有很多想去農村建房,但是現在的宅基地審批越來越嚴格,面積也越來越小,怎么才能在農村再蓋出一棟漂亮的別墅成了大家所向往的事情。今天給大家分享13款實惠經典的別墅戶型,總有一款適合你!
.jpg)
本文由別墅圖紙超市編輯發布,如需了解更多,可登錄網站主頁http://www.wxtmjd.cn/,或 者撥打我們的免費電話400-8080-889在線咨詢。
>>>>推薦閱讀: 精選6款高品質農村別墅,養老住家最佳之選!
>>>>推薦閱讀: 大受歡迎的一款二層帶露臺、落地窗農村別墅,性價比超高
>>>>推薦閱讀: 12款占地不足百平的農村別墅,經濟實用,最高造價不過26萬!











