農村自建三合院,現代與中式相結合,韻味十足!
只有懂得生活的匠心獨運,才能對得起在光陰歲月里的美好如初。建房也要講究時尚和美學,在建筑的美學上,中式的三合院是最能體現中國農村建筑的形態,換句話說,一棟別墅若沒點中式的元素好意思叫農村別墅嗎,現代與中式相結合的庭院式別墅最受農村建房朋友的歡迎。
別墅的基本情況
建筑面積:306.71m²
建筑尺寸:24.6X19.8米
建筑結構:磚混結構

項目概況:
按照當地的居住習慣和建筑特點,建筑的形式依照農村的三合院,帶有院子能夠自己居住、可以當做農家樂、可接待、可聚餐。
老房子拆除,本來的戶型樣式不變。


效果圖展示



全部采用的是坡面的屋頂,美觀大氣也能利于排水。房子分為東廂房和西廂房,中間為房子的主體。風格為園林式風格,中庭有美麗豐富的景觀,立面元素為當地特有的石頭砌筑,外墻加真石漆抹面,配以小黛瓦。
施工展示
總共耗時4個月,下面是它的施工圖。

房子的毛坯已經完成,簡單的抹灰還不夠,需要在外面刷上真石漆。這套房子主色系以米黃色為主,下面用的是文化石,通過不同的配比來體現別墅的質感,達到豐富別墅層次,強化空間闊度感的效果。




效果圖和實景圖的對比,看看這個建成后的效果怎么樣。

頗有一點中式的韻味。除了房子的顏色有點差別,其他的地方幾乎是復制粘貼的效果。地面鋪設石板路,防滑且美觀。


小青瓦兩邊稍稍翹起,大氣之感油然而生。正面全部是以透明落地窗為墻面,增加采光的同時,讓視覺在院子處得到延伸。


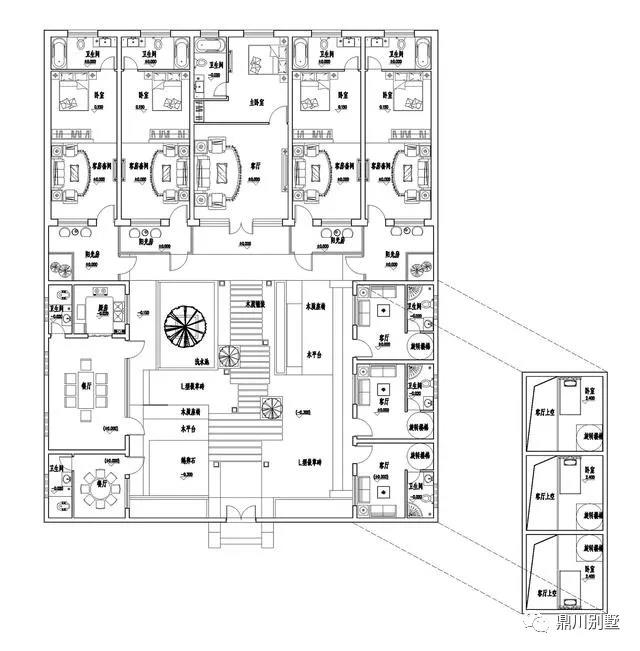
平面圖:
設有5處套房,帶有大客廳和獨衛,中間的一套為主臥室;西廂設有封閉式廚房和兩處餐廳,一處餐廳為套間,帶有獨衛;東廂設計三套客房,一層設有客廳和衛生間,回旋樓梯上去,便是臥室,二層局部挑空;

.jpg)
本文由別墅圖紙超市編輯發布,如需了解更多,可登錄網站主頁http://www.wxtmjd.cn/,或者撥打我們的免費電話400-8080-889在線咨詢。
>>>>推薦閱讀:6款非常適合農村自建房的三層復式別墅設計
>>>>推薦閱讀:10款造價22萬新農村自建別墅,選中即可開工!
>>>>推薦閱讀:9套進深11米左右的自建別墅設計,小宅基地的大選擇!











