三層農村別墅,一輩子只為這一棟房,這樣建才不虧!
回農村老家建棟房子不僅是中老年人的執念,也成了當代很多年輕人的夢想。越是親身經歷了城里快節奏的生活,就越向往農村悠閑、愜意的日子。人生短暫,只要有條件,為何不選擇建個農村別墅過這樣自由自在的日子呢!

戶主看中了這款效果圖,只是圖紙的布局對他們家庭來說點不合適,又找設計師進行了修改。

別墅建好后正面圖,原先樓主家老房子周圍就有很多樹木,為了建房不得不砍掉或移栽。
側面圖:

背面:

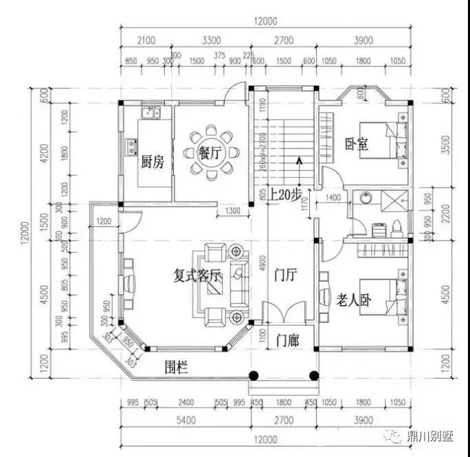
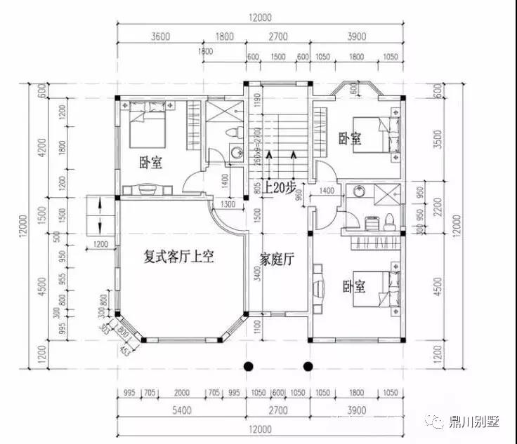
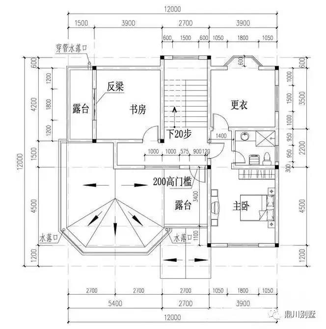
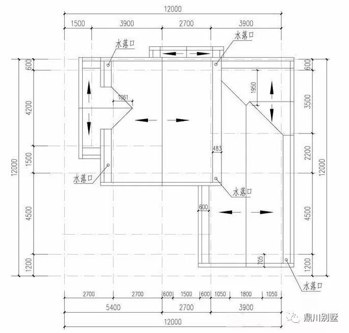
開間12米,進深12米,占地面積129平方米,別墅總共三層,外墻采用黃色噴漆,客廳挑空,多窗設計。
一層平面圖:

二層平面圖:

三層平面圖:

屋頂平面:

別墅不僅外形美觀,室內布局也很合理...

上圖這個客廳的房頂看上去是不是怪怪的呢,施工隊沒有按照圖紙做,比圖紙上低了40公分,拆掉重做了,材料、人工費施工方承擔,所以這里提醒各位自建房的朋友,包給施工隊做一定要簽合同。

主體基本完工,外墻、屋面家門窗花費40多萬,就差裝修,我們看看樓主家室內裝修成果。
客廳:


餐廳:

廚房:

樓梯間:


樓主家室內設計也是請設計師設計的,果然這有圖紙對著做出來的效果,跟僅憑農村師傅經驗自己摸索那效果截然不同,所以如果真的想建棟好的別墅,圖紙是不可或缺的,別再說我們農村不用圖紙都可以建的,那不叫別墅,那叫自建房。
.jpg)
本文由別墅圖紙超市編輯發布,如需了解更多,可登錄網站主頁http://www.wxtmjd.cn/,或者撥打我們的免費電話400-8080-889在線咨詢。
>>>>推薦閱讀:6款非常適合農村自建房的三層復式別墅設計
>>>>推薦閱讀:10款造價22萬新農村自建別墅,選中即可開工!
>>>>推薦閱讀:9套進深11米左右的自建別墅設計,小宅基地的大選擇!











