6款面寬11米三層農村別墅設計,秒殺火柴盒戶型
有的農村朋友可能有這樣的感覺,村子里的好多自建房戶型都跟火柴盒似的,以前不懂還以為這就是農村房子的特色呢!后面自己準備建房子才了解到,火柴盒戶型的根本原因在于受了宅基地開間和面寬的限制,難以找到合適的戶型,于是就隨便這么建起來了。如今自己也面臨宅基地受限的情況怎么辦呢?難不成也隨便建個就好?當然不行啦!下面小編就介紹6款面寬11米的三層農村別墅設計給你,多種風格可選,分分鐘秒殺火柴盒戶型。
第一款:漂亮三層復式歐式別墅

編號: DC0305
開間: 10.946米 進深: 15.9米
占地面積: 155.35平方米
建筑面積: 480.95平方米
主體造價: 45-50萬
首層戶型:

圖紙預覽:


一 層:門廳、客廳(中空)、臥室(附衛生間)、臥室、棋牌室、廚房、餐廳、衛生間
二 層:主臥(附書房,衣帽間,衛生間,2陽臺,露臺)、2臥室、儲存間、衛生間
三 層:健身房(附露臺)、臥室(附衛生間,露臺)、2臥室、書房、衛生間、露臺、涼亭
第二款:新農村三層別墅

編號: DC0294
開間: 11.1米 進深: 9.6米
占地面積: 109.06平方米
建筑面積: 294.8平方米
主體造價: 26-30萬
首層戶型:

圖紙預覽:


一 層:玄關、客廳(中空)、臥室、廚房、餐廳、衛生間
二 層:2臥室、書房(附陽臺)、娛樂室、衛生間
三 層:客廳、2臥室、書房、衛生間、露臺
第三款:獨棟三層帶車庫別墅

編號: DC0277
開間: 11米 進深: 11.6米
占地面積: 130.71平方米
建筑面積: 385.85平方米
主體造價: 28-32萬
首層戶型:

圖紙預覽:


一 層:客廳、臥室、廚房、餐廳、衛生間、車庫
二 層:客廳、娛樂廳、臥室(附陽臺)、2臥室、書房、衛生間
三 層:娛樂廳、臥室(附陽臺)、2臥室、衛生間、露臺
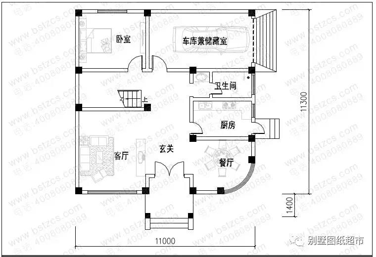
第四款:漂亮實用三層簡歐小別墅

編號: DC0243
開間: 11米 進深: 11.3米
占地面積: 120.85平方米
建筑面積: 307.63平方米
主體造價: 25-32萬
首層戶型:

圖紙預覽:


一 層:客廳、臥室、廚房、餐廳、衛生間、車庫或儲藏室
二 層:客廳、臥室(附衛生間)、2臥室、書房(附陽臺)、衛生間、陽臺
三 層:2臥室(附衛生間)、露臺
第五款:三層帶車庫露臺復式客廳別墅


編號: DC0225
開間: 11.2米 進深: 11.7米
占地面積: 125.7平方米
建筑面積: 305.12平方米
主體造價: 20-25萬
首層戶型:

圖紙預覽:


一 層:客廳(中空)、臥室、廚房、餐廳、衛生間、車庫
二 層:客廳、臥室(附陽臺)、2臥室、書房、衛生間
三 層:臥室(附書房)、2臥室、衛生間、露臺
第六款:三層帶車庫新農村別墅


編號: DC0157
開間: 11.04米 進深: 11.94米
占地面積: 116.7平方米
建筑面積: 325.01平方米
主體造價: 22-26萬
首層戶型:

圖紙預覽:


一 層:走廊、客廳、臥室、廚房、餐廳、衛生間、車庫
二 層:客廳(附陽臺)、主臥(附衣帽間,衛生間)、2臥室、衛生間
三 層:客廳(附陽臺)、2臥室、衛生間、露臺
.jpg)
本文由別墅圖紙超市編輯發布,如需了解更多,可登錄網站主頁http://www.wxtmjd.cn/,或者撥打我們的免費電話400-8080-889在線咨詢。
>>>>推薦閱讀:這8套農村別墅設計,戶型討喜,堂屋露臺一應俱全!
>>>>推薦閱讀:13款新中式自建別墅設計圖,中國人拒絕不了的美!
>>>>推薦閱讀:9套進深11米左右的自建別墅設計,小宅基地的大選擇!











