面寬受限不擔心,5款11米面寬二層別墅設計供您選擇
想建個大房子,奈何面寬只有11米。想讓戶型再大一些,奈何面寬只有11米。這面寬受限想要建個理想的房子真的好難啊!要是花個幾十萬把房子建起來了,又沒有那么的舒適,想想都心疼。可是這個宅基地是死的,不是你說想要多大就多大的,怎么辦?難不成就只好這樣屈就了。但一輩子可能就那么一套房子了,還是好好設計設計吧!今天小編就給大家帶來了5款11米面寬的二層別墅設計,讓您建房少操心。
農村二層坡屋頂小別墅


編號: DC0283
開間: 11米 進深: 9.6米
占地面積: 112.72平方米
建筑面積: 257.77平方米
主體造價: 20-25萬
首層戶型:

圖紙預覽:


一 層:堂屋、客廳、2臥室、廚房、餐廳、衛生間
二 層:客廳(附陽臺)、臥室(附書房)、3臥室、衛生間
二層復式帶露臺別墅

編號: DC0250
開間: 11.34米 進深: 13.31米
占地面積: 136.40平方米
建筑面積: 254.44平方米
主體造價: 20-25萬
首層建筑:

圖紙預覽:


一 層:客廳、臥室(附衛生間)、臥室、儲藏室、廚房、餐廳、衛生間
二 層:休息區(附陽臺)、臥室(附衛生間)、2臥室、書房、衛生間
頂 層:露臺
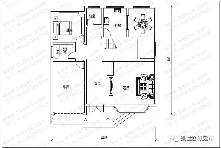
帶露臺及車庫二層小別墅

編號: DC0230
開間: 11.1米 進深: 11.4米
占地面積: 123.09平方米
建筑面積: 207.43平方米
主體造價: 22-27萬
首層戶型:

圖紙預覽:


一 層:玄關、客廳、臥室、廚房、餐廳、儲藏室、衛生間、車庫
二 層:臥室(附衛生間)、臥室(附衣帽間)、臥室、衛生間、露臺
新農村二層別墅


編號: DC0181
開間: 11.2米 進深: 13.6米
占地面積: 143.99平方米
建筑面積: 283.66平方米
主體造價: 24-30萬
首層戶型:

圖紙預覽:


一 層:玄關、客廳、臥室、廚房、餐廳、衛生間
二 層:客廳(附陽臺)、2臥室(附陽臺)、2臥室、衣帽間、衛生間
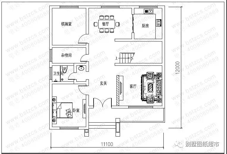
二層農村自建別墅

編號: DC0134
開間: 11.1米 進深: 12米
占地面積: 123.05平方米
建筑面積: 246.1平方米
主體造價: 18-24萬
首層戶型:

圖紙預覽:


一 層:客廳、臥室、棋牌室(或臥室)、廚房、餐廳、雜物間、衛生間
二 層:小客廳、臥室(附衛生間)、2臥室、書房(或臥室)、衛生間、陽臺
.jpg)
本文由別墅圖紙超市編輯發布,如需了解更多,可登錄網站主頁http://www.wxtmjd.cn/,或者撥打我們的免費電話400-8080-889在線咨詢。
>>>>推薦閱讀:13萬建一套面寬11米的農村別墅,你心動嗎?
>>>>推薦閱讀:12X11.6米二層農村自建小別墅,主體25萬左右就能搞定
>>>>推薦閱讀:精選6款二層半自建別墅,二三十萬實現鄉村別墅夢











