這8款火遍農村的自建別墅,真后悔沒有早點遇到!
現在對于普通農村居民來說,花個幾十萬左右來建房,除了自己喜歡當然還要實用和美觀啦,小編今天整理了8套很受農村朋友歡迎的自建別墅,個個都是經典,來和大家一起欣賞下吧,覺得有用可以收藏哦!
農村三層帶旋轉樓梯別墅

戶型基本信息
編號: DC0219
層數: 三層
結構形式: 框架結構
開間: 11.7米 進深: 12米
占地面積: 138.16平方米
建筑面積: 352.46平方米
主體造價: 30-35萬
首層戶型:

圖紙預覽:


一 層:客廳、臥室(附衛生間)、臥室、廚房、餐廳、衛生間
二 層:客廳、臥室(附衛生間)、臥室、兒童房、棋牌室、衛生間、露臺
三 層:臥室(附書房)、臥室、衛生間、露臺
新農村三層帶露臺自建別墅

戶型基本信息
編號: DC0221
層數: 三層
結構形式: 磚混結構
開間: 9.96米 進深: 12.96米
占地面積: 111.68平方米
建筑面積: 305.6平方米
主體造價: 22-28萬
首層戶型:

圖紙預覽:


一 層:客廳、2臥室、廚房、餐廳、衛生間
二 層:客廳、3臥室、書房、衛生間、陽臺
三 層:3臥室、書房、衛生間、露臺
二層帶車庫露臺新農村自建別墅

戶型基本信息
編號: DC0362
層數: 二層
結構形式: 磚混結構
開間: 17.1米 進深: 10.2米
占地面積: 181.49平方米
建筑面積: 341.34平方米
主體造價: 26-30萬
首層戶型:

二層戶型:

一 層:門廳、客廳、臥室(附衛生間)、臥室、廚房、餐廳、衛生間、車庫
二 層:臥室(附衛生間)、臥室(附露臺)、2臥室、衛生間、露臺
三層歐式自建別墅

戶型基本信息
編號: DC0055
層數: 三層
結構形式: 磚混結構
開間: 15.6米 進深: 10.3米
占地面積:143.38平方米
建筑面積:435.4平方米
主體造價: 35-40萬
首層戶型:

圖紙預覽:



一 層:堂屋、客廳、臥室(附衛生間)、廚房、餐廳、衛生間、車庫
二 層:起居室、臥室(附陽臺)、臥室(附衛生間)、2臥室、衛生間、陽臺
三 層:起居室、娛樂廳、臥室(附衛生間)、書房(附陽臺)、衛生間、露臺
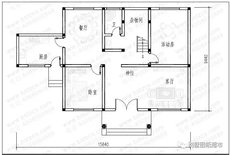
農村二層小別墅

戶型基本信息
編號: DC0017
層數: 二層
結構形式: 磚混結構
開間: 15.84米 進深: 9.44米
占地面積: 134.8平方米
建筑面積: 225.6平方米
主體造價: 18-22萬
首層戶型:

圖紙預覽:



一 層:客廳、臥室、活動房(或臥室)、廚房、餐廳、雜物間、衛生間
二 層:4臥室、衛生間、露臺
二層帶陽臺雙拼別墅

戶型基本信息
編號: DC0360
層數: 二層
結構形式: 磚混結構
開間: 16米 進深: 13.2米
占地面積: 212.8平方米
建筑面積: 483.89平方米
主體造價: 43-48萬
首層戶型:

二層戶型:

一 層:客廳、臥室(附衛生間)、廚房、餐廳、衛生間
二 層:起居室、臥室(附衛生間)、臥室(附陽臺)、臥室、衛生間
二層帶陽臺農村小別墅

戶型基本信息
編號: DC0324
層數: 二層
結構形式: 磚混結構
開間: 13.8米 進深: 8.4米
占地面積: 116.18平方米
建筑面積: 268.86平方米
主體造價: 22-26萬
首層戶型:

圖紙預覽:



一 層:客廳、臥室(附衛生間)、臥室、廚房、餐廳、衛生間
二 層:起居室、臥室(附書房,衛生間,陽臺,露臺)、臥室(附陽臺)、2臥室、衛生間
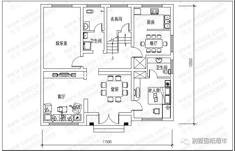
新農村三層帶露臺別墅

戶型基本信息
編號: DC0028
層數: 三層
結構形式: 磚混結構
開間: 11.5米 進深: 10.5米
占地面積: 121.03平方米
建筑面積: 312.31平方米
主體造價: 22-26萬
首層戶型:

圖紙預覽:


一 層:堂屋、客廳、老人房(附衛生間)、娛樂室、廚房、餐廳、農具間、衛生間
二 層:客廳、2臥室(附陽臺)、2臥室、2衛生間
三 層:2臥室(附陽臺)、臥室、衛生間、露臺
住著這樣的房子,生活一定很美好吧!這些都是爆款哦,造價合適,戶型好,準備蓋房的朋友不要錯過!
.jpg)
本文由別墅圖紙超市編輯發布,如需了解更多,可登錄網站主頁http://www.wxtmjd.cn/,或者撥打我們的免費電話400-8080-889在線咨詢。
>>>>推薦閱讀:6款帶堂屋的三層農村別墅,農村就要建這樣的好房子!
>>>>推薦閱讀:7套兩層復式自建別墅戶型,自建房中的精品戶型!
>>>>推薦閱讀:這8套農村別墅設計,戶型討喜,堂屋露臺一應俱全!











