7款平屋頂新農村別墅,款款經典,漂亮省錢又實用
農村自建房用坡屋頂好還是平屋頂好,這實在是個備受爭議的問題。有人覺得平屋頂施工簡單、造價低,而且通過設計,平屋頂反而更有一番韻味,再做一個樓梯直通屋面,那就是一個寬敞的觀景臺,不管是休閑還是曬東西,對農家來說都非常實用。今天小編給大家分享7款平屋頂自鑒別墅,造型干凈利落,配色清爽自然,整體非常簡約大氣,建造工藝也較為簡單,非常適合自建。
二層半帶露臺平屋頂別墅
.jpg)
編號: DC0340
結構形式: 磚混結構
主體造價: 28-32萬
開間: 14.4米 進深: 12.3米
占地面積: 178.36平方米
建筑面積: 401.45平方米
首層戶型:
.jpg)
二層戶型:
.jpg)
屋頂:

一 層:客廳、臥室(附衛生間)、2臥室、廚房、餐廳、衛生間、車庫
二 層:起居室、棋牌室、臥室(附書房,衣帽間,衛生間)、臥室(附衣帽間)、3臥室、衛生間
三 層:儲存間、露臺
農村二層半平屋頂別墅
.jpg)
.jpg)
編號: DC0241
結構形式: 磚混結構
主體造價: 18-24萬
開間: 15.24米 進深: 9.72米
占地面積: 105.98平方米
建筑面積: 209.36平方米
首層戶型:
.jpg)
圖紙預覽:

一 層:堂屋、2臥室、廚房、餐廳、衛生間
二 層:客廳(附陽臺)、臥室(附陽臺)、臥室、衛生間、屋頂曬臺
三 層:屋頂曬臺
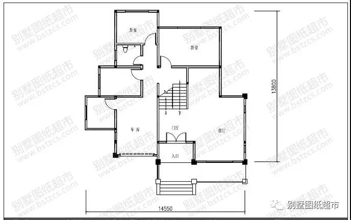
帶車庫及露臺錯層別墅
.jpg)
.jpg)
.jpg)
編號: DC0170
結構形式: 框架結構
主體造價: 32-38萬
開間: 14.55米 進深: 13.8米
占地面積: 170.6平方米
建筑面積: 381.7平方米
首層戶型:

圖紙預覽:

一 層:門廳、客廳、2臥室、儲藏室、衛生間、車庫(附雜物間)
二 層:臥室(附陽臺)、廚房、餐廳、衛生間
三 層:臥室(附陽臺,露臺)、臥室、陽臺(附露臺)、衛生間
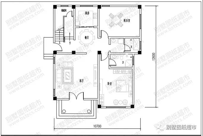
三層帶露臺平坡結合屋頂別墅
.jpg)
.jpg)
編號: DC0142
結構形式: 框架結構
主體造價: 38-45萬
開間: 12.5米 進深: 15米
占地面積: 160.8平方米
建筑面積: 450平方米
首層戶型:
.jpg)
圖紙預覽:

一 層:客廳、臥室(附衛生間)、臥室、棋牌室、廚房、餐廳、儲藏室、衛生間
二 層:客廳、臥室(附衛生間,陽臺)、臥室(附陽臺)、臥室、書房、廚房、餐廳、儲藏室、衛生間
三 層:會客廳、臥室(附陽臺,露臺)、臥室、涼亭、衛生間
三層平屋頂別墅

編號: DC0125
結構形式: 框架結構
主體造價: 30-35萬
開間: 10.7米 進深: 12.6米
占地面積: 127.99平方米
建筑面積: 385.92平方米
首層戶型:

圖紙預覽:

一 層:客廳、臥室(附衛生間)、娛樂室、廚房、餐廳、儲藏間、衛生間
二 層:客廳(附陽臺)、主臥(附衛生間)、2臥室、衛生間
三 層:家庭活動室、2臥室、衛生間、屋面露臺
三層錯層平屋頂別墅
.jpg)
編號: DC0073
結構形式: 框架結構
主體造價: 30-35萬
開間: 10.7米 進深: 12.6米
占地面積: 127.99平方米
建筑面積: 385.92平方米
首層戶型:
.jpg)
圖紙預覽:
.jpg)
一 層:客廳、臥室(附衛生間)、娛樂室、廚房、餐廳、儲藏間、衛生間
二 層:客廳(附陽臺)、主臥(附衛生間)、2臥室、衛生間
三 層:家庭活動室、2臥室、衛生間、屋面露臺
新農村二層平屋頂別墅
.jpg)
.jpg)
編號: DC0053
結構形式: 磚混結構
主體造價: 18-24萬
開間: 11.6米 進深: 13.5米
占地面積: 119.14平方米
建筑面積: 215.74平方米
首層戶型:

圖紙預覽:


一 層:客廳、2臥室、廚房、餐廳、農具房、衛生間、庭院
二 層:起居室(附陽臺)、2臥室、衛生間、露臺
三 層:露臺
現在農村建坡屋頂的比較多,平屋頂的越來越少見,其實平屋頂如果做好了屋頂隔熱和防水比坡屋頂利用率更高。
.jpg)
本文由別墅圖紙超市編輯發布,如需了解更多,可登錄網站主頁http://www.wxtmjd.cn/,或者撥打我們的免費電話400-8080-889在線咨詢。
>>>>推薦閱讀:【農村自建別墅實拍】5款不容錯過的農村別墅
>>>>推薦閱讀:十套經典美觀農村別墅(效果圖+建房案例),良心推薦!
>>>>推薦閱讀:90%人不知道的建房標準,學會這些心里有數,蓋房不出錯!











