5款論戶型和外觀都是農村別墅精品的二層精致小別墅
現在在農村建房的大部隊很多都是80、90后 ,他們的審美觀對老一輩而言有了很大的不同,不在滿足于那種簡單的自建房了。而是對于房子的布局和外觀都有了很高的要求。這也促使農村很多好看的房子如雨后春筍般涌起。要想自家的房子好看又時尚。下面5款二層的自建房不容錯過!
編號: DC0062
層數: 二層
結構形式: 框架結構
主體造價: 25-30萬
開間: 16米
進深: 12米
占地面積: 156.5平方米
建筑面積: 239.4平方米
.jpg)
一 層: 客廳、2臥室、廚房、餐廳、衛生間、車庫
二 層: 2臥室、衛生間
.jpg)
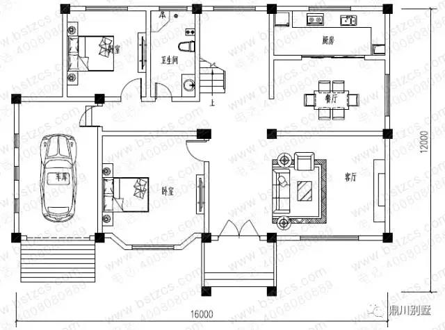
編號: DC0112
層數: 二層
結構形式: 磚混結構
主體造價: 20-25萬
開間: 13米
進深: 12.4米
占地面積: 142.77平方米
建筑面積: 249.95平方米
.jpg)
一 層: 走廊、客廳、3臥室、廚房、餐廳、衛生間、雜物間
二 層: 客廳(附露臺)、臥室(附衛生間)、臥室(附衣帽間)、衛生間、露臺
.jpg)
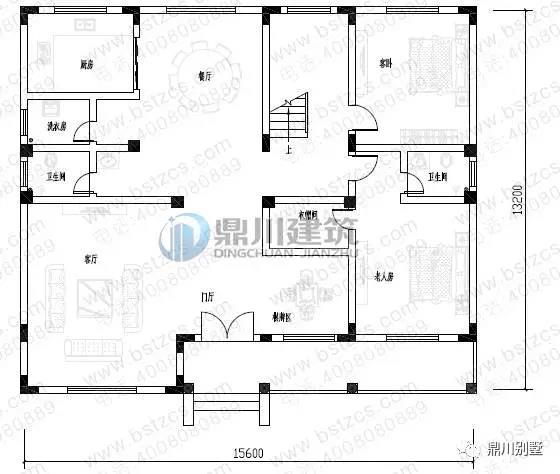
編號: DC0298
層數: 二層
結構形式: 框架結構
主體造價: 32-36萬
開間: 15.6米
進深: 13.2米
占地面積: 194.53平方米
建筑面積: 379.14平方米
.jpg)
一 層: 客廳、棋牌室、臥室(附衣帽間,衛生間)、臥室、廚房、餐廳、洗衣房、衛生間
二 層: 起居室、臥室(附書房,衣帽間,衛生間,陽臺)、2臥室、衛生間、露臺
閣 樓: 儲藏間
.jpg)
編號: DC0354
層數: 二層
結構形式: 磚混結構
主體造價: 32-36萬
開間: 13.8米
進深: 12.3米
占地面積: 176.06平方米
建筑面積: 362.03平方米
.jpg)
一 層: 走廊、門廳、客廳、臥室(附衛生間)、臥室(附衣帽間)、廚房、餐廳、衛生間
二 層: 起居室(附陽臺)、臥室(附衣帽間,書房,衛生間)、臥室(附2露臺)、臥室、衛生間
.jpg)
編號: DC0233
層數: 二層
結構形式: 磚混結構
主體造價: 28-32萬
開間: 11.1米
進深: 12.7米
占地面積: 133.49平方米
建筑面積: 259.6平方米
.jpg)
一 層: 走廊、玄關、客廳、臥室、廚房、餐廳、儲藏室、衛生間、車庫
二 層: 客廳、臥室(附衛生間,陽臺)、3臥室、書房、衛生間
閣 樓: 儲藏間
.jpg)
.jpg)
本文由別墅圖紙超市編輯發布,如需了解更多,可登錄網站主頁http://www.wxtmjd.cn/,或者撥打我們的免費電話400-8080-889在線咨詢。
>>>>推薦閱讀:這5款超正的農村自建房案例,讓你的房子美一輩子
>>>>推薦閱讀:5套帶車庫二層農村別墅,不超過30萬,拿回家立馬蓋
>>>>推薦閱讀:2017最實用的3款二層樓房設計圖,任何一款都是農村的標桿











